Search results

  1. Tirane, shitet apartament 1+1 Kati 7, 50 m² 107.000 €

    Ky apartament ofrohet për shitje në një nga zonat më të kërkuara të Tiranës, shumë pranë Zojës së Këshillit të Mirë, zonë e njohur për komunitetin e madh të studentëve italianë. Sipërfaqe neto: 43 m² Sipërfaqe bruto: 50 m² Apartamenti është totalisht i investuar nga e para, i arreduar me...
  2. Tirane, jepet me qera apartament 2+1 Kati 8, 105 m² 800 €

    - Jepet me Qira Apartament 2+1 ne Rezidencen Magnet . Apartamenti ndodhet ne katin e 8 te nje prej pallateve ne kompleks. Eshte i organizuar ne 2 dhoma gjumi, nje sallon me kend kuzhine dhe nje tualet. Ka siperfaqe totale 105m2 totalisht i mobiluar dhe i investuar se fundmi. - Residenca Magnet...
  3. Tirane, shitet apartament duplex 1+1 , 58 m² 128.500 €

    Apartament per shitje tek Liqeni Thate! Shitet Apartament tek Liqeni Thate Pozicionohet pranë Rrugës Eduart Mano •1 Sallon / Kuzhine •1 Dhoma gjumi •1 Tualet •1Ballkon •Sip Bruto 57.5 m2 •Sip.Neto 48.2m2 •Kati 1 •Viti ndertimit-2010 •Karakteristike Dalluese-Apartamenti aktualisht eshte me...
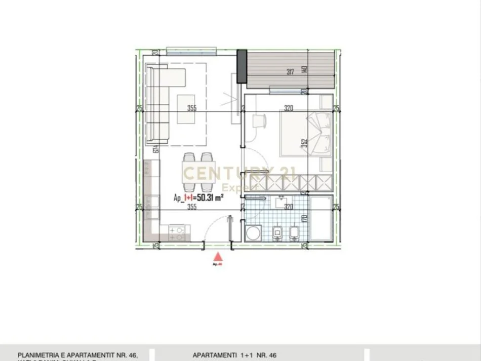
  4. Tirane, shitet apartament 1+1 Kati 6, 57 m² 59.700 €

    Shitet apartament 1+1 në Paskuqan, pranë Unazës së Madhe, në një pallat të ri në përfundim. Ndodhet në katin e 6-të në një pallati 7 katësh dhe ofron të gjitha facilitetet për një jetesë komode familjare. Organizimi i apartamentit përfshin - 1 dhomë gjumi, - sallon me kuzhinë, - korridor...
  5. Tirane, shitet apartament 1+1 Kati 3, 56.000 m² 56.000 €

    Apartamenti ndodhet ne nje ndertim te ri ne zonen e Paskuqanit, shume prane Bulevardit te Ri! Informacion teknik: * Kati i 3 * Siperfaqe neto: 49 m2 * Siperfaqe bruto: 55.71m2 Organizimi: * Sallon * Dhome gjumi * Tualet * Ballkon me dalje nga salloni dhe dhoma matrimoniale. *Apartamenti eshte...
  6. Tirane, shitet apartament 1+1 Kati 4, 70 m² 68.300 €

    Shitet Apartament ne një kompleks banimi të projektuar për jetesë komode dhe të qetë, vetëm pak minuta larg qendrës së Tiranës! Rezidenca ofron cilësi ndërtimi, privatësi dhe hapësira të gjelbra për familjet që kërkojnë siguri dhe rehati. Apartament 1+1 me sipërfaqe bruto 69.68m2; Kati i tretë...
  7. Tirane, shitet apartament 2+1 Kati 5, 77 m² 78.800 €

    Shitet Apartament ne një kompleks banimi të projektuar për jetesë komode dhe të qetë, vetëm pak minuta larg qendrës së Tiranës! Rezidenca ofron cilësi ndërtimi, privatësi dhe hapësira të gjelbra për familjet që kërkojnë siguri dhe rehati. Apartament 2+1 me sipërfaqe bruto 76.54 m2; Kati i tretë...
  8. Tirane, shitet apartament 1+1 Kati 3, 63 m² 60.400 €

    Shitet Apartament ne një kompleks banimi të projektuar për jetesë komode dhe të qetë, vetëm pak minuta larg qendrës së Tiranës! Rezidenca ofron cilësi ndërtimi, privatësi dhe hapësira të gjelbra për familjet që kërkojnë siguri dhe rehati. Apartament 1+1 me sipërfaqe bruto 62.9m2; Kati i tretë...
  9. Tirane, shitet apartament 3+1 Kati 3, 118 m² 123.900 €

    Apartamente në shitje në fund te Bulevardit te Ri ne zonen e Paskuqanit, te Diellon Apartments 2. Akses i lehtë, pozicion i favorshëm, larg zhurmave dhe pranë natyrës. Kontaktoni tani për të rezervuar apartamentin tuaj! Cel. : 0688000363
  10. Tirane, shitet apartament 1+1 Kati 5, 74 m² 77.700 €

    Apartamente në shitje në fund te Bulevardit te Ri ne zonen e Paskuqanit, te Diellon Apartments 2. Akses i lehtë, pozicion i favorshëm, larg zhurmave dhe pranë natyrës. Kontaktoni tani për të rezervuar apartamentin tuaj! L.Q Cel. : 0688000363
  11. Tirane, jepet me qera apartament 2+1 Kati 19, 110 m² 1.500 € (Garden building)

    JEPET ME QIRA APARTAMENT 2+1+2 TEK GARDEN BUILDING, RRUGA E KAVAJES. Informacion mbi Apartamentin: • Ndërtim i Ri • Kati 19 • Sipërfaqje : 110 M2 • Ndriçim Natyral në çdo ambient • Totalisht i investuar • Kondicionim ne cdo dhome Organizohet ne: - Sallon i gjerë dhe i ndriçuar, i pajisur me...
  12. Tirane, jepet me qera apartament 1+1 Kati 8, 65 m² 830 € (Rr.Mine Peza)

    Jepet me qira apartament i ri 1+1 tek Rezidenca Mine Peza me siperfaqe 65m2. Eshte i organizuar nga nje ambient ndenjeje dhe gatimi, nje dhome gjumi, nje ballkon, nje tualet. Jepet totalisht i mobiluar ne menyre moderne me te gjithe aksesoret qe i duhet nje apartamenti per nje jete te qete dhe...
  13. Tirane, shitet Vile 3+1 , 355 m² 700.000 €

    Ofrojme per shitje vile moderne ne rezidencen ELYSIUM prane TEG. Vila perbehet nga 3 kate me siperfaqe prej: • 325 m2 siperfaqe ndertimi • 347 m2 siperfaqe truall Kati perdhe eshte i organizuar ne: • Sallon • Ambjent gatimi dhe ngrenie • 1 tualet • verande • oborr i gjelberuar • 4 vende parkimi...
  14. Tirane, shitet garsonier Kati 3, 35 m² 90.000 €

    Ofrohet për shitje garsoniere në një nga zonat më të kërkuara të Tiranës, shumë pranë 21 Dhjetorit. Ndodhet në një godinë të ndërtuar në vitin 2002, në katin e 3-të (pa ashensor). Totalisht e rinovuar dhe e mobiluar Dritare termike për izolim të plotë akustik dhe termik Instalime elektrike dhe...
  15. Tirane, jepet me qera apartament 1+1 Kati 6, 70 m² 1.000 €

    - Informacion: • Sipërfaqja neto: 60 m² • Sipërfaqja bruto: 70 m² • Kati: 6 • Sallon ndenje & kuzhine, dhomë gjumi, tualet, ballkon - Karakteristika: • Pallat i mirëadministruar me ashensor • Post parkimi i përfshirë • Ambient i përshtatshëm për individë ose çifte Për më shumë informacion ose...
  16. Durres, shitet toke , 200.000 m² 1.380.000 €

    Shitet tokë + ndërtesë në zonën industriale të Xhafzotajt, Durrës Sipërfaqe: nga 10,244 m² deri në 20,000 m² Ndërtesë ekzistuese: 1-katëshe Dokumentacion: të gjitha me certifikatë pronësie Çmimi: 135 €/m² Avantazhet kryesore: -Pozicion strategjik, shumë pranë autostradës Durrës–Tiranë -Pranë...
  17. Tirane, jepet me qera apartament 2+1 Kati 2, 75 m² 700 €

    Jepet me qira apartament 2+1 në zonën e Ali Demit te shkolla "Ali Demi". Ndodhet në katin e 2 te nje pallati egzistues dhe ofron një ambient të rehatshëm, me ndriçim natyral dhe organizim shumë funksional. Organizimi i brendshëm: - Sallon i bollshëm - Kuzhinë e veçuar - 2 Dhoma gjumi - Tualeti...
  18. Tirane, jepet me qera ambjent biznesi Kati 2, 154 m² 1.400 €

    Jepet me Qira Ambient Komercial në Rrugen Myslym Shyri. Ambienti është në një prej zonave më të mira, ofron pamje dhe vizibilitet direkt nga rruga. Organizimi: Dy dhoma Nje hapesire e bollshme openspace Tualet Korridor hyres Korridor shperndares Ambient i pershtatur per kuzhine Aktualisht...
  19. Tirane, jepet me qera apartament 2+1 Kati 5, 105 m² 1.500 € (Rr.e Barrikadave)

    Jepet me qira apartement 2+1 tek Rr. Barrikadave. Apartamenti ndodhet ne katin e 5 te nje pallati te ri me ashensor dhe i mireadministruar. Mobilimi eshte i ri dhe shume cilesore. Cel. : 0688000363
  20. Tirane, jepet me qera apartament 2+1 Kati 2, 61 m² 1.000 €

    Informacion mbi Apartamentin: • Ndërtim i Ri • Kati 1 • Ashensor • Sipërfaqe: 61 M2 • Kubaturë e Rregullt • Dritë Natyrale Organizimi: • Korridor Shpërndarës • Sallon Ndënje • Ambient Gatimi • 2 Dhoma Gjumi • 1 Tualet • Vlen per tu theksuar Verande e Bollshme 110 mt. Detaje të tjera: • i...
  21. Tirane, jepet me qera apartament 2+1 Kati 2, 110 m² 1.300 €

    Informacion mbi Apartamentin: • Ndërtim i Ri i 2023 • Kati 2 • Sipërfaqe Bruto: 110 M2 • Kubaturë e Rregullt • Ndriçim Natyral në çdo ambient Organizimi: • Korridor Shpërndarës • Sallon Ndënjie • Ambjent Gatimi • 2 Dhoma Gjumi (dhoma matrimoniale ka dalje ne ballkon) • 3 Tualete • Post Parkimi...
  22. Tirane, jepet me qera apartament 2+1 Kati 5, 100 m² 650 €

    Ofrohet për qira një apartament modern dhe i arreduar me shumë shije, i pozicionuar në një nga zonat më të kërkuara të Tiranës – Astir, pranë Bar Bohem. * Vendndodhja: Astir, pranë Bar Bohem * Tipologjia: 2 dhoma gjumi + 1 sallon + ambient gatimi + 2 tualete * Sipërfaqe: 100 m² neto * Mobilimi...
  23. Tirane, jepet me qera apartament 2+1 Kati 3, 124 m² 1.800 €

    “Ambasador 3” është një kompleks modern dhe i sigurt, i pozicionuar strategjikisht midis qendrës së Tiranës dhe Parkut të Liqenit. Ky kompleks i projektuar me kujdes ofron kushte të shkëlqyera për jetesë, me lehtësira që plotësojnë kërkesat më të larta për një jetesë komode dhe moderne. Është...
  24. Tirane, shitet apartament 3+1 Kati 2, 152 m² 365.000 €

    Shesim apartament modern të tipologjisë 3+1+2 në një nga zonat më të qeta dhe preferuara të qytetit, Rezidenca Kodra e Diellit 1! Apartamenti është rinovuar së fundmi me shumë stil dhe kujdes investimet e së cilit janë totalisht të kohës. Prona është e pozicionuar në katin e dytë të një ndërtese...
  25. Tirane, jepet me qera apartament 2+1 Kati 2, 96 m² 1.300 €

    Informacion mbi Apartamentin: • Ndërtim i Ri i 2023 • Kati 2 • Sipërfaqe Bruto: 110 M2 • Kubaturë e Rregullt • Ndriçim Natyral në çdo ambient Organizimi: • Korridor Shpërndarës • Sallon Ndënjie • Ambjent Gatimi • 2 Dhoma Gjumi (dhoma matrimoniale ka dalje ne ballkon) • 3 Tualete • Post Parkimi...
  26. Tirane, jepet me qera dyqan , 27 m² 600 € (Sheshi skenderbej)

    Japim me Qira dyqan tek Rruga Mine Peza. Ambienti ka siperfaqe totale 27 m2. Apartamenti ndodhet ne katin e pare mbi toke te nje pallati te ri shume prane qendres, ne fillim te rruges Mine Peza. Per me shume info na kontaktoni! Cel. : 0688000363
  27. Tirane, jepet me qera zyre , 110 m² 2.000 €

    Ambienti ndodhet përballë "Whisky Bar", në zemër të bllokut. Ka një lokacion shumë të favorshëm për zhvillimin e biznesit tuaj, dhe akses me arteriet kryesore të qytetit për zyra. Sipërfaqe Totale: 110 m² 
 Aktualisht apartamenti është i investuar për banim dhe mund të konsiderohet të jepet si...
  28. Tirane, jepet me qera apartament 1+1 Kati 9, 77 m² 550 €

    Ky apartament 1+1 ndodhet në katin e 9-të të një ndërtese 9-katëshe në zonën e Ish Parkut, Tiranë, dhe ofrohet për qira me çmimin 550€ në muaj. • Sipërfaqe neto: 65 m² • Sipërfaqe bruto: 77 m² • Kati i 9-të, godina ka gjithsej 9 kate • Sallon ndenjeje, 1 dhomë gjumi dhe 1 banjo • E rinovuar në...
  29. Tirane, jepet me qera apartament 2+1 Kati 11, 100 m² 850 €

    Ky apartament ndodhet në katin e 11 të një ndërtese 11-katëshe në Rrugen e Kavajes, pranë me kompleksin Delijorgji dhe ofron hapësirë të bollshme për banim me siperfaqe 90 m². Apartamenti është i organizuar si më poshtë : • 1 Sallon ndenjeje të përbashkët me kuzhinën • 2 Dhoma gjumi • 2 Tualete...
  30. Tirane, shitet apartament , 115 m² 145.000 €

    FRESKU, SHESIM APARTAMENT 2+1+2 Ofrohet për shitje apartament 2+1, i ndodhur në katin e pare të një ndërtimi të ri. Apartamenti ka një sipërfaqe 115 m2 dhe nje organizim te rregullt! Karakteristikat e apartamentit: Kuzhine dhe dhome ndenje. Dy dhoma gjumi të bollshme, me ndriçim natyral të...
Back
Top