Shtepi ne shitje

apartamente ne shitje - Objekte banimi rezidenciale, banesa, garsoniere, vila

Filters

Tirane
Nr. Njesia - Zona me e afert?
11 Instituti | Kamez | Paskuqan
Location Rruga + Nr.
Paskuqan
Tipi
apartament
Siperfaqja m²
100 m²
Nr dhoma
2+1
Kati
Kati 1
Cmimi Euro
100430
🏡 Shitet Apartament 2+1 – Rezidenca Belfior Në një rezidencë të qetë dhe të mirëadministruar, ofrohet për shitje apartament 2+1 i pozicionuar në...
Tirane
Nr. Njesia - Zona me e afert?
11 Instituti | Kamez | Paskuqan
Location Rruga + Nr.
Paskuqan
Tipi
apartament
Siperfaqja m²
80 m²
Nr dhoma
2+1
Kati
Kati 2
Cmimi Euro
95568
🏡 Shitet Apartament 2+1 – Rezidenca Belfior Një apartament i këndshëm dhe funksional në Rezidencën Belfior, me orientim jugor që garanton ndriçim...
Tirane
Location Rruga + Nr.
Don Bosko
Tipi
apartament
Siperfaqja m²
97 m²
Nr dhoma
2+1
Cmimi Euro
203000
🔥Shitet Apartament 2+1 – Don Bosko ✨ 📍 Vendndodhja: Don Bosko, zonë shumë e kërkuar dhe e aksesueshme 🏢 Pallat: Ndërtim i vitit 2010 🏙️ Kati: 5...
Tirane
Location Rruga + Nr.
Astir
Tipi
apartament
Siperfaqja m²
80 m²
Nr dhoma
1+1
Cmimi Euro
117450
🔥Shitet Apartament 1+1 – Kompleksi Urban Gate, Astir 📐 Sipërfaqe bruto: 80.1 m² 🏢 Kati i 8-të banim (me ashensor) 🏗 Ndërtim i ri 📄 Në proces...
Kavaje
Location Rruga + Nr.
Blerimaj,Kavaje
Tipi
shtepi
Siperfaqja m²
956 m²
Nr dhoma
4+1
Kati
Kati 3
Cmimi Euro
350000
Shitet godine + biznes +shtepi banimi,ne autostraden Blerimaj,Kavaje Pershkrim Sipërfaqe & Organizim Sipërfaqe totale ndertimi 956.6 m²...
Tirane
Nr. Njesia - Zona me e afert?
5 Liqeni | Rr. Kosovareve | Petro Nini
Tipi
apartament
Siperfaqja m²
59 m²
Nr dhoma
2+1
Kati
Kati 4
Cmimi Euro
160000
Shitet Apartament 2+1 me sip, 59m ne katin e 4 ne nje pallat egzistues 5 katesh. Apartamenti ka dhe nje verande me sip, 40m qe mund te...
Kavaje
Tipi
shtepi
Siperfaqja m²
208 m²
Nr dhoma
2+1
Kati
Kati 1
Cmimi Euro
50000
❗️Okazion ❗️ 🏡Shitet shtepi e vjeter +truall ,pak m nga shetitorja "Josif Budo",Kavaje 📐Siperfaqe trualli 208.5 m² 📐Siperfaqe shtepise 95.5 m²...
Tirane
Nr. Njesia - Zona me e afert?
11 Instituti | Kamez | Paskuqan
Location Rruga + Nr.
Paskuqan rruga Demokracia
Tipi
apartament
Nr dhoma
1+1
Cmimi Euro
72300
Belfiore 2 Residence, Paskuqan një rezidencë moderne me standarde të larta ndërtimi Adresa: Rruga “Demokracia”, Paskuqan Disponojme per...
Tirane
Nr. Njesia - Zona me e afert?
11 Laprake | Spitali ushtarak | ish Dogana
Tipi
apartament
Siperfaqja m²
70 m²
Nr dhoma
1+1
Kati
Kati 10
Cmimi Euro
122000
SHITET APARTAMENT 1+1 KATI i 10 i BANIMIT ORIENTIM JUG PERENDIM SIPERFAQE BRUTO 69.6 m2 SIPERFAQE 57.5 M2 ORGANIZIM 1 DHOME NDENJE DHE...
Tirane
Location Rruga + Nr.
Bulevardi i Ri
Tipi
apartament
Siperfaqja m²
76 m²
Nr dhoma
1+1
Cmimi Euro
125000
🏡 Apartament 1+1 për Shitje – Pranë Bulevardit të Ri 📍 Vendndodhja: Rruga Siri Kodra – zonë e kërkuar dhe në zhvillim të shpejtë 🏗️ Objekti: Në...
Tirane
Nr. Njesia - Zona me e afert?
9 Don Bosko | Jordan Misja | Bulevardi i Ri
Location Rruga + Nr.
Kryqezimi i Don Boskos
Tipi
apartament
Siperfaqja m²
84 m²
Nr dhoma
1+1
Kati
Kati 10
Cmimi Euro
131500
Shitet super Apartament 1+1 tek Residenca Manhattan 1, tek unaza e vogel kryqezimi i Don Boskos. Siperfaqe totale 84.8 m2 prej te cilave 68 m2...
Tirane
Location Rruga + Nr.
Drymadhes
Tipi
apartament
Siperfaqja m²
123 m²
Nr dhoma
2+1
Kati
Kati 3
Cmimi Euro
306500
Shitet Apartament 2+1 tek Morina Palace, Dhermi, Drymadhes Apartamenti ka siperfaqe totale 122.5 m2 prej te cilave 100.4 m2 neto Orgaznizohet ne...
Tirane
Nr. Njesia - Zona me e afert?
2 Pazari i ri | Toptani | 9-katshet | Barrikada
Location Rruga + Nr.
QENDER
Tipi
apartament
Siperfaqja m²
113 m²
Nr dhoma
1+1
Kati
Kati 19
Cmimi Euro
620000
SHTIET APARTAMENT 1+1 MOUNT TIRANA, KATI I 19 ORIENTIM PERENDIM ME NJE NGA OBJEKTET ME PRESTIGJIOZE NE TIRANE. ME STANDARTIN ME TE LARTE TE...
Tirane
Nr. Njesia - Zona me e afert?
7 Rr. e Kavajes | 21 Dhjetori
Location Rruga + Nr.
RRUGA MUHAMET GJOLLESHA
Tipi
apartament
Siperfaqja m²
143 m²
Nr dhoma
2+1
Kati
Kati 20
Cmimi Euro
371800
🏙️ Apartament 2+1+2 për shitje – Rr. Muhamet Gjollesha, pranë 21 Dhjetorit 📐 143 m² bruto | 112 m² neto 🏢 Kati 26 | Në proces ndërtimi Organizim...
Tirane
Nr. Njesia - Zona me e afert?
7 Rr. e Kavajes | 21 Dhjetori
Location Rruga + Nr.
MUHAMET GJOLLESHA
Tipi
apartament
Siperfaqja m²
82 m²
Nr dhoma
1+1
Kati
Kati 14
Cmimi Euro
213000
🏙️ Apartament 1+1 për shitje – Rr. Muhamet Gjollesha, pranë 21 Dhjetorit 📐 82 m² bruto | 64 m² neto 🏢 Kati 14 | Në proces ndërtimi Organizim...
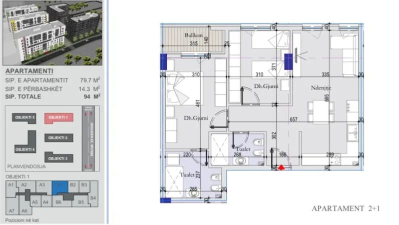
Tirane
Nr. Njesia - Zona me e afert?
11 Laprake | Spitali ushtarak | ish Dogana
Location Rruga + Nr.
Rruga 29 Nentori
Tipi
apartament
Siperfaqja m²
69 m²
Nr dhoma
1+1
Kati
Kati 8
Cmimi Euro
88000
TIRANA ENTRY 3 SHITET APARTAMENT 1+1 KATI I 8 I BANIMIT ME ORIENTIM JUG ORGANIZIM PERFEKT ME KORRIDOR,NJE DHOME GJUMI , AMBIENT NDENJE DHE...
Tirane
Nr. Njesia - Zona me e afert?
11 Laprake | Spitali ushtarak | ish Dogana
Location Rruga + Nr.
RRUGA 29 NENTORI
Tipi
apartament
Siperfaqja m²
61 m²
Nr dhoma
1+1
Kati
Kati 5
Cmimi Euro
81000
SHITET APARTAMENT 1+1 TIRANA ENTRY 2 APARTAMENTI NDODHET NE KATIN E 5 TE BANIMIT ME ORIENTIM PERENDIM KA NJE SIPERFAQE TOTALE PREJ 60.1 M2 DHE...
Dhermi - Palase
Tipi
Vile
Siperfaqja m²
220 m²
Nr dhoma
3+1
Kati
Kati 0
Cmimi Euro
1200000
Disponojmë vilë për shitje në San Nicolas Residence , Palasë Rezidenca turistike edhe rezidenciale ndodhet në bregdetin Shqiptar, në një zone...
Tirane
Nr. Njesia - Zona me e afert?
11 Laprake | Spitali ushtarak | ish Dogana
Tipi
apartament
Siperfaqja m²
94 m²
Nr dhoma
2+1
Kati
Kati 2
Cmimi Euro
117500
SHITET SUPER APARTAMENT 2+1 TIRANA ENTRY 2 , NE FAZE SUVATIMI KATI I 2 I BANIMIT -ORIENTIM JUG LINDJE -APARTAMENTI KA NJE SIPERFAQE 94 M2 BRUTO...
Tirane
Nr. Njesia - Zona me e afert?
11 Laprake | Spitali ushtarak | ish Dogana
Location Rruga + Nr.
RRUGA 29 NENTORI
Tipi
apartament
Siperfaqja m²
59 m²
Nr dhoma
1+1
Kati
Kati 5
Cmimi Euro
79500
SHITET APARTAMENT 1+1 TIRANA ENTRY 3 ,PERBALLE CASA ITALIA SIPERFAQE 59 M2, NDODHET NE KATIN E 5 TE BANIMIT ME ORIENTIM LINDJE NJE APARTAMENT...
Tirane
Nr. Njesia - Zona me e afert?
11 QTU | Kashar | Casa Italia
Tipi
apartament
Siperfaqja m²
60 m²
Nr dhoma
1+1
Kati
Kati 5
Cmimi Euro
79000
SHITET APARTAMENT 1+1 ME CMIM OKAZION APARTAMENTI NDODHET NE KATIN E 5 TE BANIMIT DHE KA NJE SIPERFAQE PREJ 60 M2 DHE ORGANIZOHET NE NJE AMBIENT...
Tirane
Nr. Njesia - Zona me e afert?
11 Laprake | Spitali ushtarak | ish Dogana
Tipi
apartament
Siperfaqja m²
71 m²
Nr dhoma
1+1
Kati
Kati 2
Cmimi Euro
125000
Shitet apartament 1+1 tek Colonnade Building kati i dyte i banimit me siperfaqe totale 71.6 Organizim i rregullt dhe siperfaqe optimale Objekti...
Tirane
Nr. Njesia - Zona me e afert?
11 Laprake | Spitali ushtarak | ish Dogana
Tipi
apartament
Siperfaqja m²
89 m²
Nr dhoma
2+1
Kati
Kati 3
Cmimi Euro
149800
SHITET APARTAMENT 2+1 , COLONNADE BUILDING , RRUGA DRITAN HOXHA APARTAMENTI NDODHET NE KATIN E 3 TE BANIMIT DHE KA ORIENTIM NGA PERENDIMI KA NJE...
Tirane
Nr. Njesia - Zona me e afert?
7 Rr. e Kavajes | 21 Dhjetori
Tipi
apartament
Siperfaqja m²
112 m²
Nr dhoma
2+1
Kati
Kati 7
Cmimi Euro
302000
Disponojmë Apartament 2+1+2 për Shitje në Rrugën e Kavajës, në Kompleksin Square 21. Informacion mbi pronën: • Siperfaqe Bruto : 112.3 m2 •...
Tirane
Nr. Njesia - Zona me e afert?
9 Qender
Location Rruga + Nr.
Qender
Tipi
apartament
Siperfaqja m²
119 m²
Nr dhoma
1+1
Kati
Kati 7
Cmimi Euro
463500
📍 TIRANA ROCK – e njohur si Ndërtesa e Skënderbeut, një nga projektet më prestigjioze të kryeqytetit. Informacion mbi apartamentin: -Tipologjia...
Tirane
Nr. Njesia - Zona me e afert?
9 Qender
Location Rruga + Nr.
Shallvaret
Tipi
apartament duplex
Siperfaqja m²
215 m²
Nr dhoma
2+1
Kati
Kati 12
Cmimi Euro
650000
Dupleks në shitje – Shallvare, Tiranë Ofrohet për shitje një apartament dupleks në një nga zonat më të kërkuara dhe elitare të Tiranës...
Tirane
Nr. Njesia - Zona me e afert?
5 Komuna Parisit | Kristal Center
Location Rruga + Nr.
Komuna e Parisit
Tipi
apartament
Siperfaqja m²
59 m²
Nr dhoma
1+1
Kati
Kati 2
Cmimi Euro
180000
SHITET APARTAMENT 1+1 – Komuna e Parisit, Tiranë Vendndodhja: Komuna e Parisit, Tiranë Çmimi i shitjes: 180,000 € Sipërfaqe totale: 59 m²...
Tirane
Location Rruga + Nr.
Rruga e Elbasanit
Tipi
apartament
Siperfaqja m²
88 m²
Nr dhoma
1+1
Cmimi Euro
500000
🔥SHITET APARTAMENT LUKSOZ 1+1 + POST PARKIMI 📍 Park Gate – Rruga e Elbasanit, pranë Liqenit Artificial 📐 Sipërfaqe Totale: 87.8 m² 📐 Sipërfaqe...
Tirane
Nr. Njesia - Zona me e afert?
5 Stadiumi Dinamo | Sheshi Willson
Location Rruga + Nr.
Stadiumi Dinamo
Tipi
apartament
Siperfaqja m²
112 m²
Nr dhoma
2+1
Kati
Kati 6
Cmimi Euro
385000
Përshkrimi i Pronës Shitet apartament luksoz me organizim 2+1+2 në një nga zonat më të kërkuara të Tiranës, tek Stadiumi Dinamo. Apartamenti...
Tirane
Nr. Njesia - Zona me e afert?
5 Komuna Parisit | Kristal Center
Location Rruga + Nr.
komuna e parisit
Tipi
apartament
Siperfaqja m²
77 m²
Nr dhoma
1+1
Kati
Kati 1
Cmimi Euro
180000
Shitet apartament i investuar dhe i mobiluar, i pozicionuar në katin e parë banim, me sipërfaqe 55 m² neto dhe 18 m² verandë funksionale. Prona...
Back
Top