• Vlore, shitet apartament 2+1 Kati 0, 106 m² 370.000 € (NË REZIDENCËN “SANTORINI 2”)

Vlore
Location Rruga + Nr.
NË REZIDENCËN “SANTORINI 2”
Tipi
apartament
Siperfaqja m²
106 m²
Nr dhoma
2+1
Kati
Kati 0
Cmimi Euro
370000
Rezidenca e pushimit “Santorini 2”, e pozicionuar në bregdetin Shqiptar, në një zonë të veçantë dhe elitare, vetem 100 m nga deti, në plazhin e mrekullueshëm të Drimadhes në detin Jon, në mes të pyllit bregdetar me bimësi të shumllojshme, është vendi ideal për të pushuar dhe për të jetuar shëndetshëm, në privatësi, në gjelberim, në ajer të paster dhe pranë freskisë së detit.

Rezidenca e pushimit “Santorini 2” do të ofrojë sherbime të ndryshme si ambiente tregtare, bar-kafe-restorante, kënde lojrash për fëmijë, kënde sportive, pishinë të përbashkët, ambiente rekreative, qender sportive, vije bregdetare private, arkitekturë moderne, infrastrukturë të standarteve europiane, cilesi të lartë ndërtimi, siguri dhe administrim 24 orë, privatësi, gjelbërim, mirëmbajtje elitare, jetesë në komunitet, investim të sigurtë etj. Arkitektura e stilit të fshatrave mesdhetare, projektuar nga studio arkitekture nga më prestigjozet në botë, ofron apartamente të ndryshme me shumë dritë dhe pamje shumë të bukur.

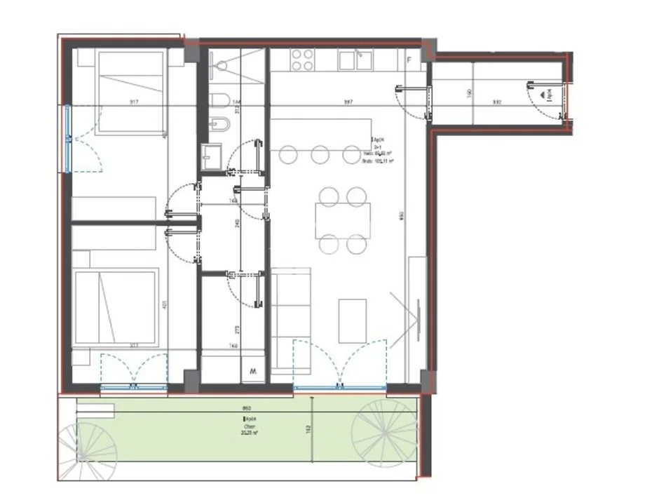
Apartament në shitje 2+1 me sipërfaqe neto 90 m2 (106 m2 bruto) + 21m2 verandë, kati përdhe. Organizohet nga ambient ndenje + kuzhinë + ngrënie, 2 dhoma gjumi, veranda, korridor dhe 2 tualete.

Perfundon në vitin 2028.

https://inf-93.com/property/3843/ne-rezidencen-santorini-2-inf1706.html

Cel. : +355672043899
 


Contact WhatsApp
Location information
address
NË REZIDENCËN “SANTORINI 2”, Vlore, Shqiperi
Back
Top