• Tirane, shitet Vile 5+1 , 959 m² 800.000 €

Tirane
Nr. Njesia - Zona me e afert?
6 Pallati me Shigjeta | Delijorgji
Tipi
Vile
Siperfaqja m²
959 m²
Cmimi Euro
800000
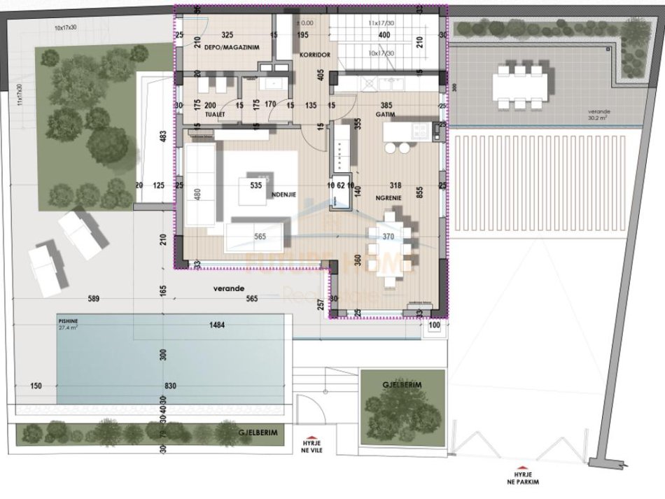
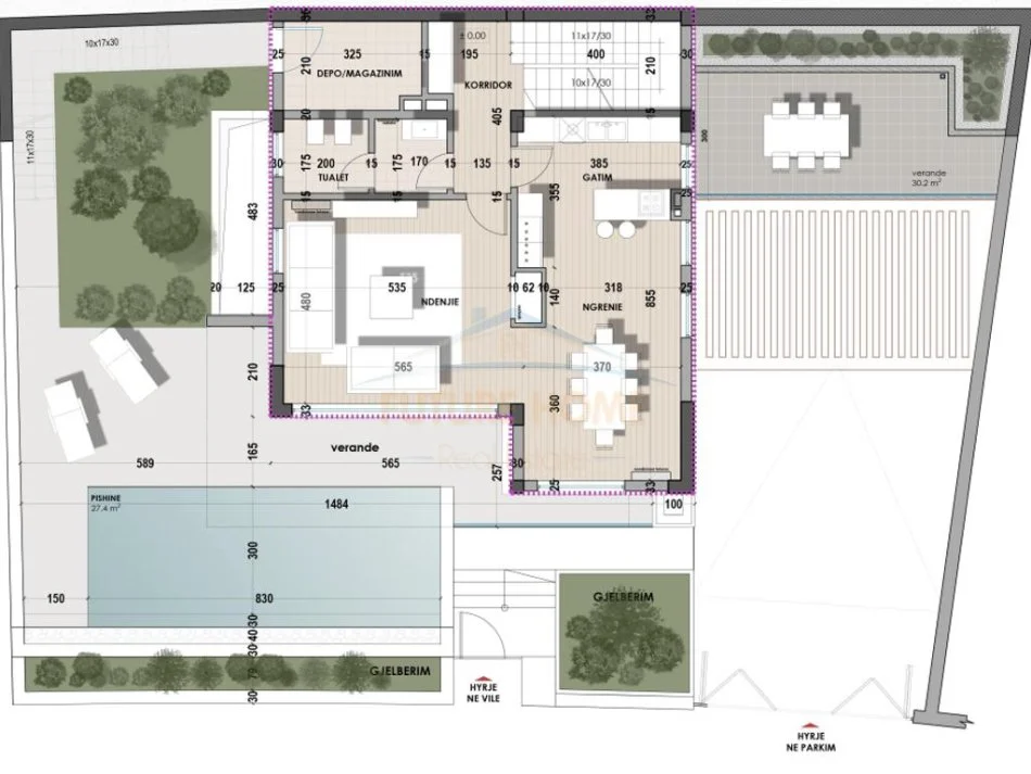
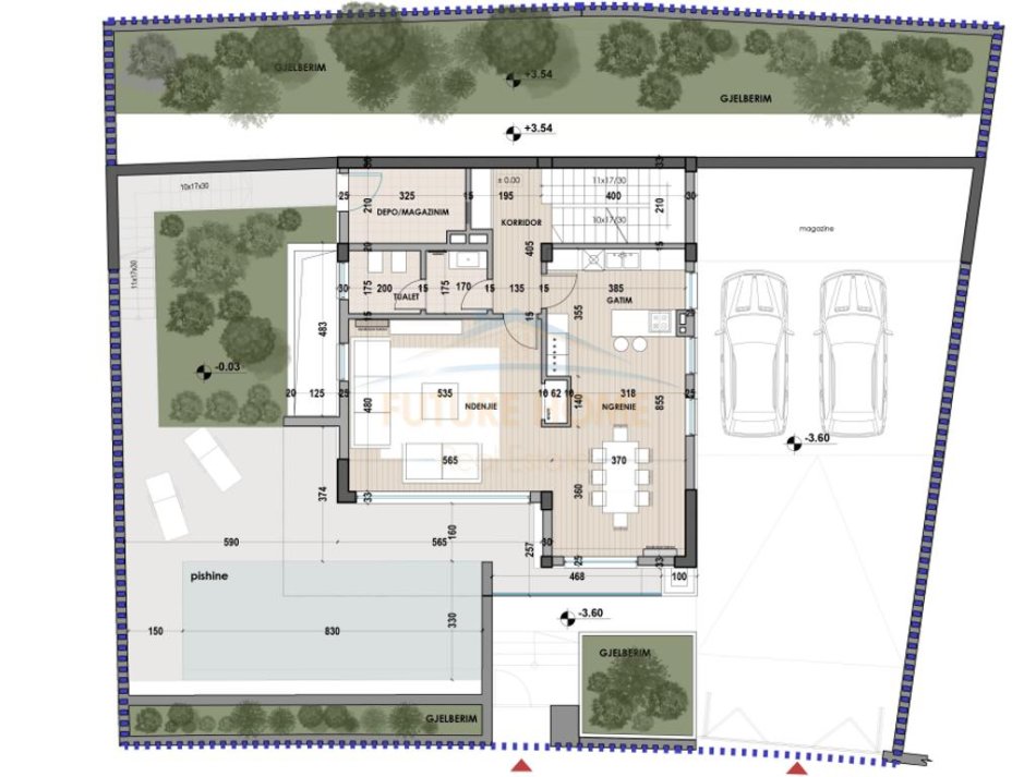
Disponojmë Vilë 3-katëshe për Shitje. Vila është e pozicionuar në zonën e Liqenit te Farkës, Rezidenca "Lake Shore" Vila individuale me një standart të lartë ndërtimi, vizioni dhe nje plan arkitekturor i përsosur ku vilat janë me pamje të plotë nga Liqeni i Farkës me aksese në Pedonalen e Liqenit. Vilat do të ndërtohen me komponentët më të mirë të ndërtimit. Vila me cilësi maksimale në komponentët e akustikës, hidroizolimit dhe termoizolimit. Një projekt në harmoni me naturën ku kombinimi i stilit klasik dhe modern bashkohen. Vetrata alumini të cilesisë së lartë, dopio xhami me gas argon bëjnë ndriçimin dhe japin më tepër pamje vilës në natyrë. Vilat Disponojnë Parcelë, Parkim dhe Pishinë Individuale. Informacion mbi Vilën: •Sipërfaqe ndërtimi: 486.5m2 •Sipërfaqe toke 472.3m2 •Sipërfaqja e Pishinës: .27.4m2 •Sipërfaqja e Magazinës: 44.4m2 •Sipërfaqja e Parkimit: 72.7m2 •Ambjente ndihmëse me Sipërfaqe: 144.5m2 =>Kati 0 (110.9m2) •2 magazina •1 dhome gjumi •1 lavanderi •Poste Parkim: 68m2 •1 tualet • 1 magazine • Depozite uji • Ambient teknik • Ballkon =>Kati 1 ( 103.3m2 ) •1 sallon •Ambient gatimi dhe ngrënie •1 tualet •1 verandë •Pishine •1 depo •Tarrace e gjelberuar =>Kati 2 ( 127.8 m2 ) •3 dhoma gjumi •2 tualete •1 ballkon •1 verandë e gjelberuar •1 garderobe Ambient shumë i përshtatshëm për qëndrim, pushim dhe barbeque. Rezidenca ndodhet në një zonë të aksesueshme dhe të preferuar për banim. Siperfaqet e ndarjes se brendshme te viles mund te organizohen dhe sipas deshires se klientit. Për ta vizituar na kontaktoni.

Samira Bahja
Tel : 0692085962

Cel. : 0692085962
 


WhatsApp
Location information
address
6 Pallati me Shigjeta | Delijorgji, Tirane, Shqiperi
Back
Top