• Tirane, shitet Vile 2+1 , 104 m² 220.000 €

Tirane
Nr. Njesia - Zona me e afert?
9 Stacioni Trenit | Zogu i Zi
Tipi
Vile
Siperfaqja m²
104 m²
Nr dhoma
2+1
Cmimi Euro
220000
APARTAMENT 2+1+2 PER SHITJE , TOP SEVEN TOWER
"TOP SEVEN TOWER RESIDENCE",
projektuar nga arkitekti Marco Casamonti , te ndodhur ne rrugen Dritan Hoxha prane Zogut Zi .
"Top Seven Tower" është projekti inovativ dhe elitar
pozicionohet në një pikë strategjike dhe me akses
të menjëhershëm në të giitha zonat kryesore tế
Tiranës. Distanca prej 1.4 km nga qendra e
kryeqytetit e bën kētë projekt një investim
koherent dhe vizionar. Gjithashtu, infrastruktura,
objektet, institucionet përreth dhe investime të
tjera të ngjashme në zonë janë tregues të dukshëm
se e githë zona po kalon një zhvillim të vrullshềm
Apartamenti ndodhet në Rezidencen "Top Seven Tower"

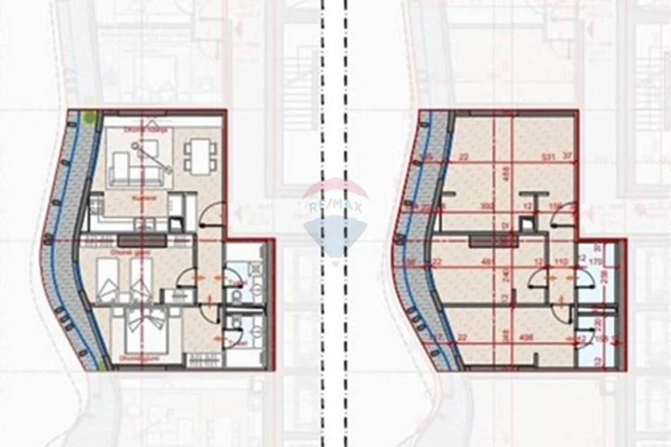
Shitet super apartament 2+1+2

Informacion mbi apartamentin
. Sipërfaqja bruto: 105.14 m2
. Sipërfaqja neto: 90.2 m2

Organizimi
- Ambient ndenje + ambient gatimi
-2 Dhoma gjumi
-2 Tualete
- 1 Ballkon i madh me dalje nga te gjitha dhomat
-Korridor shperndares

DISPONOJME APARTAMENTE TE TIPOLOGJIVE TE NDRYSHME NE REZIDENCE
MUNDESI PAGESE ME KESTE

Per me shume informacion dhe nje vizite ne prone
na kontaktoni

Cel. : 068 800 3327
 


WhatsApp
Location information
address
9 Stacioni Trenit | Zogu i Zi, Tirane, Shqiperi
Back
Top