• Tirane, shitet nga Pronari, pa-komision Vile 3+1+Aneks+Ballkon Kati 0, 259 m² 515.000 € (Neom124412)

Tirane
Nr. Njesia - Zona me e afert?
2 TEG | Lunder | Farke | Mjull-Bathore
Location Rruga + Nr.
Neom124412
Tipi
Vile
Siperfaqja m²
259 m²
Nr dhoma
3+1
Kati
Kati 0
Cmimi Euro
515000
Ne nje rezidencen luksoze prane Liqenit te Farkes shesim vile individuale.
E vendosur në mes të një peisazhi të gjelbëruar, rezidenca përfshin vila dhe apartamente elegante, të ndërtuara me standardet më të larta të arkitekturës bashkëkohore.
Çdo detaj është menduar për të krijuar një ambient jetese të qetë dhe të rehatshëm, me ajër të pastër dhe hapësira të bollshme për relaksim.

Rezidenca përfshin zona rekreative , duke krijuar një komunitet të harmonizuar me natyrën.
Siguria 24-orëshe dhe akses i lehtë në infrastrukturën urbane e bëjnë këtë vendbanim zgjedhjen ideale për ata që kërkojnë një stil jetese të shëndetshëm dhe luksoz.

Informacion mbi Vilen:
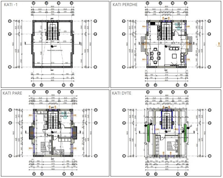
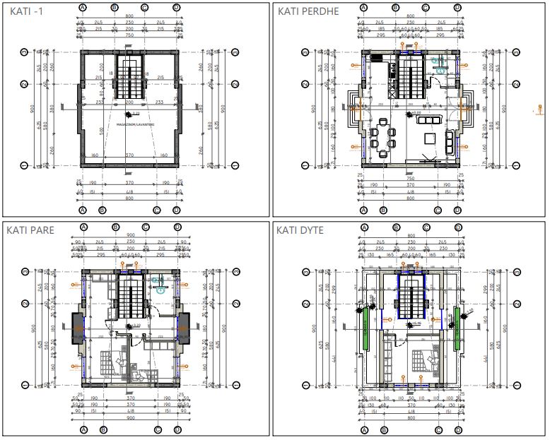
3 kate + 1 kat nentoke
Kati -1 : Podrum
Kati 0 : 1 Dhome ndenjeje se bashku me ambientin e gatimit dhe 1 tualet
Kati 1 : 2 Dhoma gjumi dhe 1 tualet
Kati 2 : 1 Dhome gjumi dhe 2 veranda me gjelberim

• Sipërfaqja neto: 259.3 m²
• Sipërfaqja bruto: 259.3 m²
• Sipërfaqja e tokës: 221.2 m²
• Sipërfaqja verande: 25.3 m²

**Mundesi e pageses me keste!
Mundesi blerje 2 poste parkimi me cmim ekstra !

Projekti perfundon ne dhjetor 2027!

Per me shume informacione mbi pronen me kontaktoni!

Cel. : 069 629 7632
 


Contact WhatsApp
Location information
address
Neom124412, Tirane, Shqiperi
Back
Top