Tirane, shitet nga Pronari, pa-komision apartament 2+1+Ballkon Kati 3, 103 m² 258.000 €
- Tirane
- Nr. Njesia - Zona me e afert?
- 7 Rr. e Kavajes | 21 Dhjetori
- Tipi
- apartament
- Siperfaqja m²
- 103 m²
- Nr dhoma
- 2+1
- Kati
- Kati 3
- Cmimi Euro
- 258000 €
21 Dhjetori afer Hotel Mondial, buzë rrugës, shitet apartament 2+1.
Kati i 3 banimi pallati i ri me ashensor.
ME HIPOTEKË.
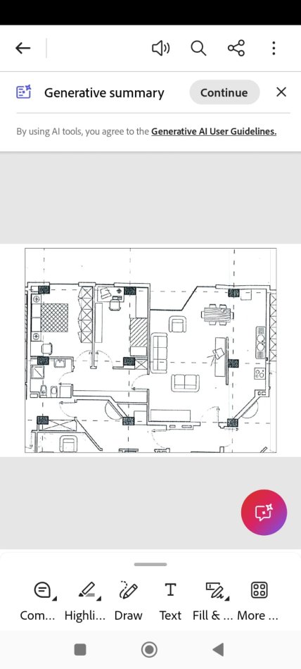
Siperfaqa neto 94.5 , bruto 103. Pallati 7 katesh, 3 hyrje në kat .
Hyrje nga rruga kryesore.
Shkalla me ndricim natyrale. I veshur me sistem kapot.
I shtruar me parket .
Mundësi ndarje ne 2 AP.
Shumë e përshtatshme edhe per aktivitetet biznesi.
Me pamje jug perëndim.
Cmime me 2500 euro për m2 .
258. 000 euro.
Pa komision agjencie.
Shumë pak i diskutueshëm.
00355675821477
Cel. : 00355675821477
Kati i 3 banimi pallati i ri me ashensor.
ME HIPOTEKË.
Siperfaqa neto 94.5 , bruto 103. Pallati 7 katesh, 3 hyrje në kat .
Hyrje nga rruga kryesore.
Shkalla me ndricim natyrale. I veshur me sistem kapot.
I shtruar me parket .
Mundësi ndarje ne 2 AP.
Shumë e përshtatshme edhe per aktivitetet biznesi.
Me pamje jug perëndim.
Cmime me 2500 euro për m2 .
258. 000 euro.
Pa komision agjencie.
Shumë pak i diskutueshëm.
00355675821477
Cel. : 00355675821477
Location information