• Tirane, shitet garsonier 1+1 Kati 2, 41 m² 74.000 €

Tirane
Nr. Njesia - Zona me e afert?
11 Laprake | Spitali ushtarak | ish Dogana
Tipi
garsonier
Siperfaqja m²
41 m²
Nr dhoma
1 dhome
Kati
Kati 2
Cmimi Euro
74000
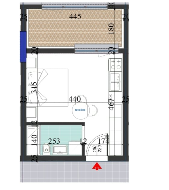
Shitet Garsonjere rruga Dritan Hoxha Colonnade Buildin

Siperfaqe 41,1 m2 bruto
Siperfaqe 34 m2 neto
Kati 2 banim

Ne proces ndertimi

Godina ndodhet 10 minuta larg Qendrës së Tiranës,Katet e para do te përdoren per funksione tregtare si: dyqane, bare, zyra,banka etj
Për ta vizituar na kontaktoni!

Cel. : 0692057226
 


WhatsApp
Location information
address
11 Laprake | Spitali ushtarak | ish Dogana, Tirane, Shqiperi
Back
Top