Tirane, shitet dyqan Kati 0, 191 m² 450.000 € (RRUGA “NAIM FRASHERI” PRANE MOZAIKUT)
- Tirane
- Nr. Njesia - Zona me e afert?
- 7 Rr. e Kavajes | 21 Dhjetori
- Location Rruga + Nr.
- RRUGA “NAIM FRASHERI” PRANE MOZAIKUT
- Tipi
- dyqan
- Siperfaqja m²
- 191 m²
- Kati
- Kati 0
- Cmimi Euro
- 450000 €
Shitet dyqan, vendodhja e të cilit është në një nga zonat më të qeta dhe të preferuara të kryeqytetit. Ndodhet afër me Drejtorin e Sigurimeve Shoqerore, me qendrën dhe pranë disa akseve rrugore kryesore të Tiranës si kryqezimi i “Zogut te zi”, rruga e “Durresit” e “Kavajes” dhe me dalje direkt në unazë të vogël, rruga “Muhamet Gjollesha” etj. Ka pranë një rrjet të mirëfilltë institucionesh arsimore, shoqërore, shtetërore dhe tregtare.
Zona ofron shërbime të ndryshme si supermarkete, shkolla, kopshte, cerdhe, klinika, bar/kafe, restorante etj.
Dyqani ndodhet në një godine ekzistuese te rikonstruktuar + shtesa që është ndertuar në 2013. Ka kubature te rregullt pa humbje në siperfaqen e tij.
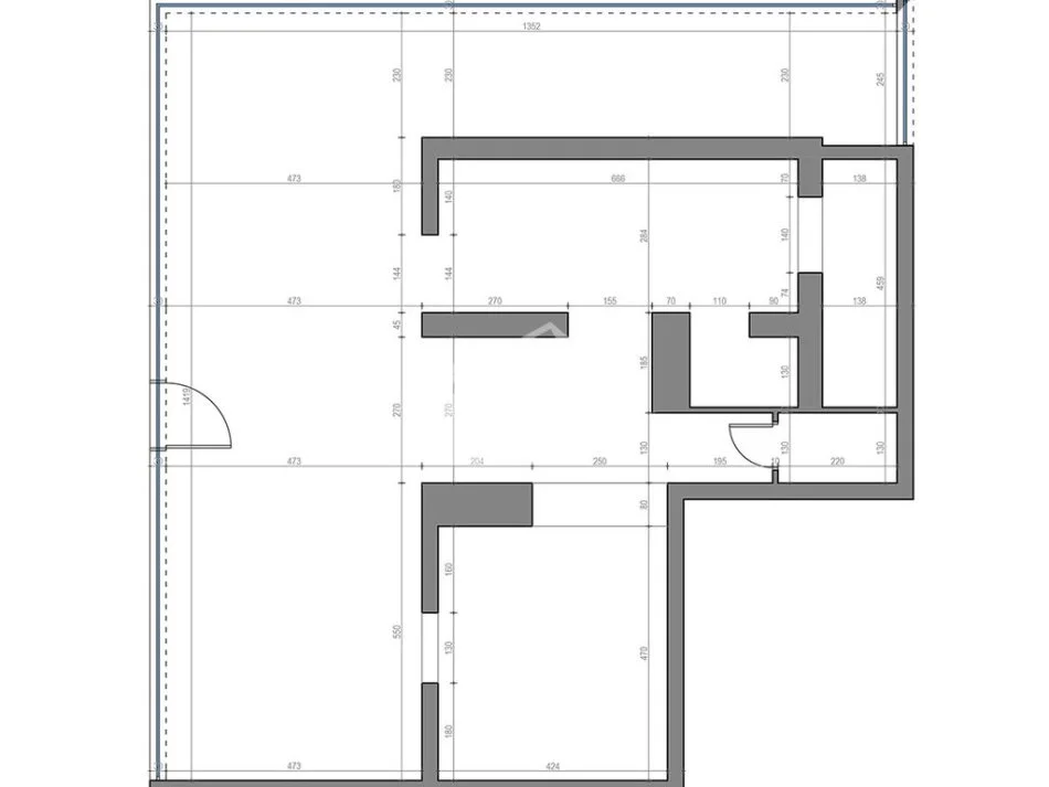
Dyqan në shitje me siperfaqe neto 191.6 m2, kati përdhe me orientimin jug-lindje. Është i organizuar në një ambient open space prej 120 m2, 3 ambiente të mbyllura dhe tualeti.
Me çertifikate pronësie.
https://inf-93.com/property/2659/rruga-naim-frasheri-prane-mozaikut-inf1165.html
Cel. : +355673044004
Zona ofron shërbime të ndryshme si supermarkete, shkolla, kopshte, cerdhe, klinika, bar/kafe, restorante etj.
Dyqani ndodhet në një godine ekzistuese te rikonstruktuar + shtesa që është ndertuar në 2013. Ka kubature te rregullt pa humbje në siperfaqen e tij.
Dyqan në shitje me siperfaqe neto 191.6 m2, kati përdhe me orientimin jug-lindje. Është i organizuar në një ambient open space prej 120 m2, 3 ambiente të mbyllura dhe tualeti.
Me çertifikate pronësie.
https://inf-93.com/property/2659/rruga-naim-frasheri-prane-mozaikut-inf1165.html
Cel. : +355673044004
Contact WhatsApp
Location information