Tirane, shitet dyqan Kati 0, 103 m² 300.000 € (ASTIR)
- Tirane
- Nr. Njesia - Zona me e afert?
- 6 Astir | Unaza e re | Teodor Keko
- Location Rruga + Nr.
- ASTIR
- Tipi
- dyqan
- Siperfaqja m²
- 103 m²
- Kati
- Kati 0
- Cmimi Euro
- 300000 €
Dyqan ne shitje
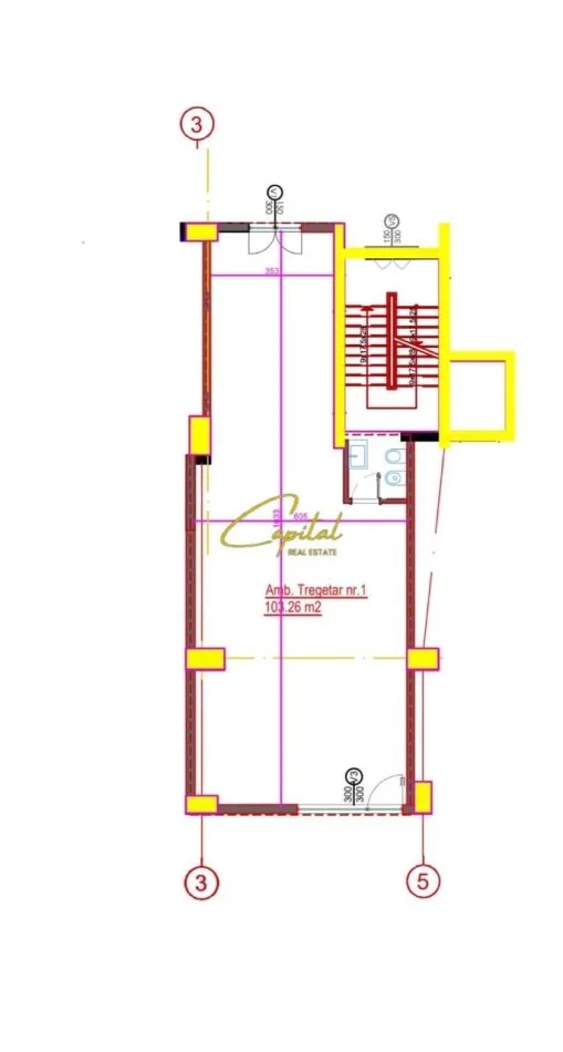
Informacion mbi Pronen
. Ambienti ofrohet bosh
. Organizimi
pen space, fasade xhami , 2 tualete , zone e aksesueshme
. Siperfaqe totale prej 103.34
. Siperfaqe neto 90.81 m2
. Pozicionohet ne katin 0 te nje pallati te ri.
. Ofron mundesi te mire reklamimi
. Ambienti eshte i pershtatshem per shume lloje biznesi dhe ideal per investim.
. Vendodhja: Astir , Kompleksi Jolla
. Cmimi 300.000 Euro
Per me teper informacion apo detaje rreth prones kontaktoni ne nr 068 666 2 444
Kodi:ASH736/MP784
Cel. : 0686662444
Informacion mbi Pronen
. Ambienti ofrohet bosh
. Organizimi
. Siperfaqe totale prej 103.34
. Siperfaqe neto 90.81 m2
. Pozicionohet ne katin 0 te nje pallati te ri.
. Ofron mundesi te mire reklamimi
. Ambienti eshte i pershtatshem per shume lloje biznesi dhe ideal per investim.
. Vendodhja: Astir , Kompleksi Jolla
. Cmimi 300.000 Euro
Per me teper informacion apo detaje rreth prones kontaktoni ne nr 068 666 2 444
Kodi:ASH736/MP784
Cel. : 0686662444
Contact WhatsApp
Location information