• Tirane, shitet apartament Kati 17, 77 m² 155.000 € (RRUGA DRITAN HOXHA)

Tirane
Location Rruga + Nr.
RRUGA DRITAN HOXHA
Tipi
apartament
Siperfaqja m²
77 m²
Nr dhoma
1+1
Kati
Kati 17
Cmimi Euro
155000

Shitet, Apartament 1+1, Lion Park 2, Rruga "Dritan Hoxha"​

155,000 €​

Pershkrimi​

Disponojmë Apartament 1+1, për Shitje
Apartamenti ndodhet tek Rruga Dritan Hoxha, Tiranë.

Informacion mbi Apartamentin:
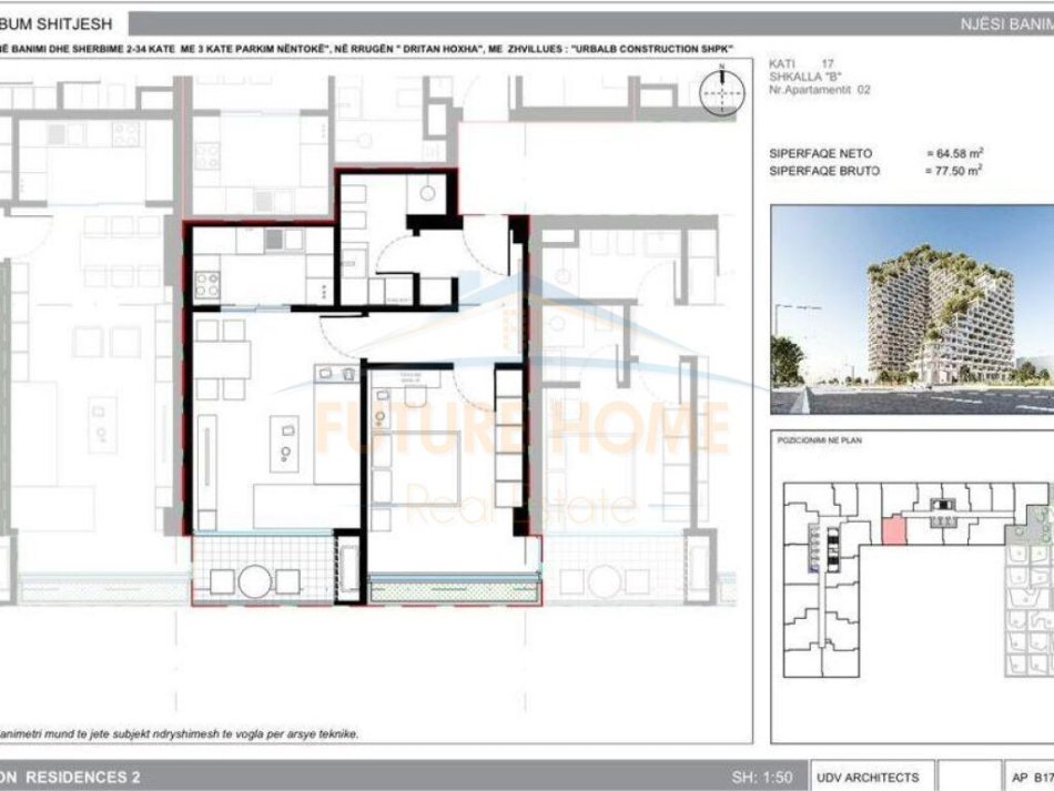
•Kati 17 banim
•Sipërfaqe Bruto: 77.50m2
•Sipërfaqe Neto: 64.58m2

Organizimi i Brendshëm:
•Ambient Ndenje dhe Ambient Gatimi (me vete)
•1 Dhomë Gjumi
•1 Tualet

Cilësime të tjera:
• Orientimi: Lindje
• Bosh
• Ne proces ndertimi
• Cilesi e larte ndertimi

Për një vizitë në pronë, na kontaktoni!
  • Referenca:
    UNA42721

Cel. : +355683636194
 


WhatsApp
Location information
address
RRUGA DRITAN HOXHA, Tirane, Shqiperi
Back
Top