You are using an out of date browser. It may not display this or other websites correctly.
You should upgrade or use an
alternative browser.
Tirane, shitet apartament duplex 2+1+Ballkon , 132 m² (Tirana Konstruksion 2, Bulevardi i Ri)
-
Tirane
- Nr. Njesia - Zona me e afert?
-
9 Don Bosko | Jordan Misja | Bulevardi i Ri
- Location Rruga + Nr.
-
Tirana Konstruksion 2, Bulevardi i Ri
- Tipi
-
apartament duplex
- Siperfaqja m²
-
132
m²
- Nr dhoma
-
2+1

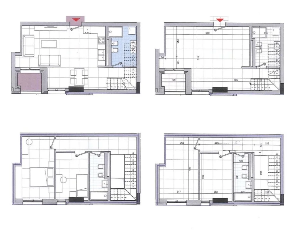
Shitet Dupleks 2+1+2 – Bulevardi i Ri

Tirana Konstruksion 2

Vijë e parë në Bulevardin e Ri – pozicion strategjik

Tipologji: Duplex 2+1+2

Sipërfaqe totale: 132.02 m²

Orientim: Lindje

Faza: Karabina

Mundësi pagese: Me këste

Çmimi: 2,300 €/m²

Ideale si banesë luksoze ose investim afatgjatë, me akses të drejtpërdrejtë në një nga zonat me zhvillimin më të shpejtë të Tiranës.

Kontakt: +355 69 419 8755
address
Tirana Konstruksion 2, Bulevardi i Ri, Tirane, Shqiperi