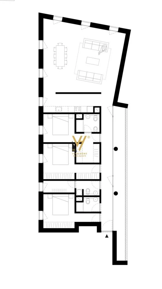
Tirane, shitet apartament 3+1+Ballkon Kati 3, 186 m² 364.000 € (LONGHILL RESIDENCE)
- Tirane
- Nr. Njesia - Zona me e afert?
- 2 TEG | Lunder | Farke | Mjull-Bathore
- Location Rruga + Nr.
- LONGHILL RESIDENCE
- Tipi
- apartament
- Siperfaqja m²
- 186 m²
- Nr dhoma
- 3+1
- Kati
- Kati 3
- Cmimi Euro
- 364000 €
Cel. : 0676722221
Contact WhatsApp
Location information