• Tirane, shitet apartament 2+1 Kati 6, 89 m² (VILA L)

Tirane
Nr. Njesia - Zona me e afert?
6 Astir | Unaza e re | Teodor Keko
Location Rruga + Nr.
VILA L
Tipi
apartament
Siperfaqja m²
89 m²
Nr dhoma
2+1
Kati
Kati 6
Cmimi Euro
16000
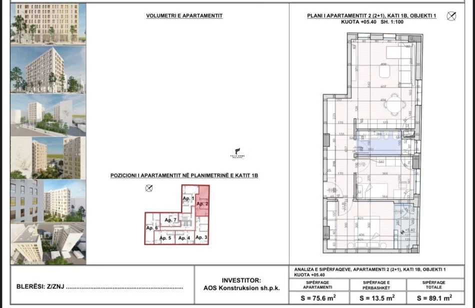
SHITET APARTAMENT
•2+1
•SIPERFAQE BRUTO 89.1 M2
•SIPERFAQE NETO 75.6 M2
•KATI 6
•SALLON
•2 DHOMA GJUMI
•TUALET
•BALLKON
•FAZE FASADE
•BEHET I BANUESHEM NE PRILL 2025
•POST PARKIMI OPSIONAL NE VLERE 16.000 EURO
•ASTIR
•PRANE VILA L
•ÇMIMI 115.800 EURO •KONTAKTONI 0684447771
FELIZ HOME FSH447

Cel. : 0684447771
 


WhatsApp
Location information
address
VILA L, Tirane, Shqiperi
Back
Top