Tirane, shitet apartament 2+1 Kati 2, 97 m² 190.000 Euro (Rruga Drago Siliqi)
- Tirane
- Nr. Njesia - Zona me e afert?
- 2 Rr. e Elbasanit | Shkolla Baletit
- Tipi
- apartament
- Siperfaqja m²
- 97 m²
- Nr dhoma
- 2+1
- Kati
- Kati 2
- Cmimi Euro
- 190000 €
Zona/Rruga : Rruga Drago Siliqi
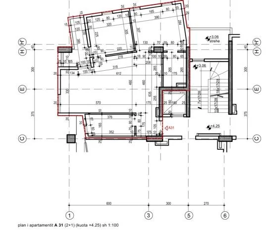
APARTAMENT 2+1 NE SHITJE PRANE SHKOLLES OSMAN MYDERIZI
Rruga Drago Siliqi
Orientim me drite natyrale
Sip. 97.13 m2
Euro 190.000 Euro
Organizohet ne korridor, sallon + ambjent gatimi, 2 dhoma gjumi, 2 tualete.
Apartamenti ndodhet ne katin e 2 te nje objekti te ri bashkekohor, te mireorganizuar dhe me planimetri te rregullt.
Me termoizolim, dritare me izolim termik dhe akustik.
Mundesi shume e mire banimi, gjithashtu dhe investimi.
Per me teper informacion kontakto
068 83 65 021
inHouse Real Estate
Cel. : 0688365021
Mundesi shume e mire banimi, gjithashtu dhe investimi.
Per me teper informacion kontakto
inHouse Real Estate
Cel. : 0688365021
Location information