Tirane, shitet apartament 2+1 Kati 11, 87 m² 135.320 € (Fusha e Aviacionit.)
- Tirane
- Nr. Njesia - Zona me e afert?
- 7 Fusha Aviacionit
- Location Rruga + Nr.
- Fusha e Aviacionit.
- Tipi
- apartament
- Siperfaqja m²
- 87 m²
- Nr dhoma
- 2+1
- Kati
- Kati 11
- Cmimi Euro
- 135320 €
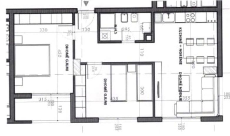
Apartamnt 2+1 per shitje tek Ish-Fusha e Aviacionit.
Apartament 2+1 ofrohet per shitje tek Ish-Fusha e Aviacionit. Ndertim cilesor dhe i mireadministruar. Hyrje me hapesire te bollshme dhe kubature e rregullt. Apartamenti eshte ne faze ndertimi dhe pritet te mbaroje ne fundin e vitit 2026. 2 Dhoma gjumi. Ambient ndenjie+kuzhine gatimi. Tualet. Ballko. Zone mjaft e preferuar dhe lehtesisht e aksesueshme.
Cel. : 0696020003
Apartament 2+1 ofrohet per shitje tek Ish-Fusha e Aviacionit. Ndertim cilesor dhe i mireadministruar. Hyrje me hapesire te bollshme dhe kubature e rregullt. Apartamenti eshte ne faze ndertimi dhe pritet te mbaroje ne fundin e vitit 2026. 2 Dhoma gjumi. Ambient ndenjie+kuzhine gatimi. Tualet. Ballko. Zone mjaft e preferuar dhe lehtesisht e aksesueshme.
Cel. : 0696020003
Location information