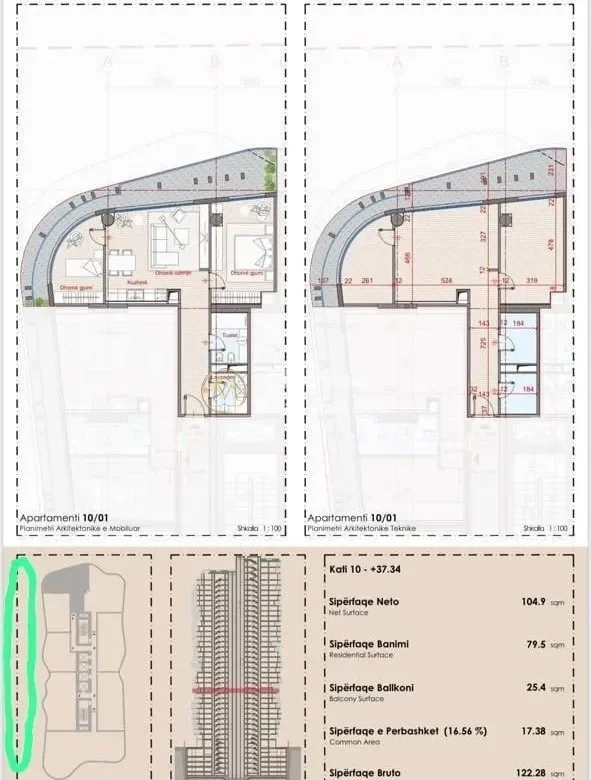
Tirane, shitet apartament 2+1 Kati 10, 122 m² 250.674 € (Zogu Zi)
- Tirane
- Nr. Njesia - Zona me e afert?
- 9 Stacioni Trenit | Zogu i Zi
- Location Rruga + Nr.
- Zogu Zi
- Tipi
- apartament
- Siperfaqja m²
- 122 m²
- Nr dhoma
- 2+1
- Kati
- Kati 10
- Cmimi Euro
- 250674 €
- Agjencia Imobiliare MORINA REAL ESTATE ofron Apartament ne Shitje 2 + 1, i pozicionuar në zonën e Rruga e Durresit/Zogu I Zi, me një çmim prej 250.674 €.
______________
• Lloji i pronës: Apartament
• Adresa: Zogu i Zi
• Sipërfaqja: 122.28 m² bruto/104.9 neto
• Çmimi: 250.674 €
• Mobilimi:
• Kati: 10
2050M2
Informacion mbi Pronën:
Shitet — Apartament 2 + 1, me sipërfaqe prej 122.28 m² dhe i pozicionuar në Rruga e Durresit/Zogu I Zi.
apartamenti ka dhe nje dhome tjeter e cila ka paisjet per lavanderi
Ne faze grope
Agjenti: Bruno Cerra
MORINA REAL ESTATE
morinarealestate.al
© MORINA REAL ESTATE – Creating Opportunities
Vështrim i përgjithshëm
- Apartament
- Lloji i pronës
- 2
- Dhoma gjumi
- 1
- Banjo
Detajet
Publikuar më 7 Janar, 2026 në 2:31 pmPërditësuar 7 Janar, 2026 at 5:28 pm- ID e pronësMRE-142838
Cel. : 0692040256
Contact WhatsApp
Location information