• Tirane, shitet apartament 2+1 Kati 1, 65 m² 150.000 €

Tirane
Nr. Njesia - Zona me e afert?
9 Don Bosko | Jordan Misja | Bulevardi i Ri
Tipi
apartament
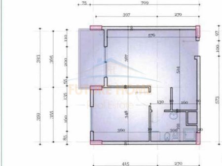
Siperfaqja m²
65 m²
Nr dhoma
1+1
Kati
Kati 1
Cmimi Euro
150000
Apartamenti ndodhet pranë Viva Market, në zonën Don Bosko, një nga zonat më të kërkuara dhe të zhvilluara për banim në Tiranë. Informacion mbi apartamentin: • Tipologjia: 1+1 • Sipërfaqe neto: 55 m² • Sipërfaqe bruto: 65 m² • Kati: 1 banim • Orientim: Jug–Perëndim • Ndërtim i ri • Pallat me ashensor • Me dokumentacion të rregullt hipotekor • Mundësi blerjeje me kredi • Shitet bosh Apartamenti disponon: • Ambient ndenje + gatimi • 1 Dhom gjumi • 1 Tualet • Ballkon Cilësime të tjera: • Planimetri funksionale dhe kubaturë e rregullt • Ndriçim natyral gjatë gjithë ditës • I përshtatshëm për banim ose investim • Zonë e zhvilluar me të gjitha shërbimet pranë Për më shumë informacione ose për një vizitë në pronë, ju lutem na kontaktoni!

Cel. : +355 69 986 9325
 


WhatsApp
Location information
address
9 Don Bosko | Jordan Misja | Bulevardi i Ri, Tirane, Shqiperi
Back
Top