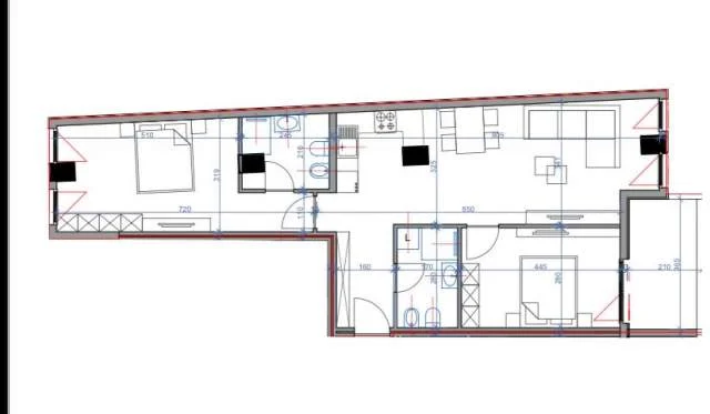
Tirane, shitet apartament 2+1 Kati 1, 112 m² 1.320 Euro/m2
- Tirane
- Nr. Njesia - Zona me e afert?
- 11 Laprake | Spitali ushtarak | ish Dogana
- Tipi
- apartament
- Siperfaqja m²
- 112 m²
- Nr dhoma
- 2+1
- Kati
- Kati 1
- Cmimi Euro
- 147840 €
🏙 Kompleksi AURA
Laprake
Apartamente 2+1 ne Shitje
2+1 me sip 112 m2, kati 1
2+1 me sip 133 m2, kati 7
1320 euro / m2
Rezidenca me nje arkitekture fantastike te organizuar ne seksione me 8 kate banim dhe parkim nentokesor.
🏞Hapesira te gjelbra dhe clodhese per te gjithe.
Në faze ndertimi :
🏗Cilësi maksimamale ndërtimi me standarte bashkëkohore.
Per me shume kontakto
0686632223
#inHouseRealEstate
Cel. : 0686632223
2+1 me sip 133 m2, kati 7
🏞Hapesira te gjelbra dhe clodhese per te gjithe.
🏗Cilësi maksimamale ndërtimi me standarte bashkëkohore.
Per me shume kontakto
#inHouseRealEstate
Cel. : 0686632223
Location information