You are using an out of date browser. It may not display this or other websites correctly.
You should upgrade or use an
alternative browser.
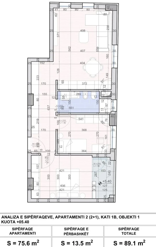
Tirane, shitet apartament 2+1+Ballkon Kati 6, 89 m² 116.000 € (Rruga Sokrat Miho)
-
Tirane
- Nr. Njesia - Zona me e afert?
-
6 Astir | Unaza e re | Teodor Keko
- Location Rruga + Nr.
-
Rruga Sokrat Miho
- Tipi
-
apartament
- Siperfaqja m²
-
89
m²
- Nr dhoma
-
2+1
- Kati
-
Kati
6
- Cmimi Euro
-
116000
€

AOS KONSTRUKSION

APARTAMENT 2+1 NE SHITJE NE ASTIR

Rr Sokrat Miho

Orientim me drite natyrale

2+1 me sip 89 m2 , kati 6

116.000 euro

Post Parkimi 16.000 euro

Faze Perfundimi

Ndertimi ka cilesi te larte dhe standarte bashkekohore te banimit, me hapesira clodhese dhe e pozicionuar prane rrugeve kryesore.
⚜MUNDESI IDEALE PER BANIM !

068 83 65 021
in House Real Estate
Cel. : 0688365021
address
Rruga Sokrat Miho, Tirane, Shqiperi