• Tirane, shitet apartament 2+1+Ballkon Kati 3, 103 m² 258.000 € (21 Dhjetori/Rr.Muhamet Gjollesha)

Tirane
Nr. Njesia - Zona me e afert?
7 Rr. e Kavajes | 21 Dhjetori
Location Rruga + Nr.
21 Dhjetori/Rr.Muhamet Gjollesha
Tipi
apartament
Siperfaqja m²
103 m²
Nr dhoma
2+1
Kati
Kati 3
Cmimi Euro
258000
🏢Ne zonen e 21 Dhjetorit ,Rruga Muhamet Gjollesha prane Hotel Mondial shitet apartament 2+1, 258,000 EURO

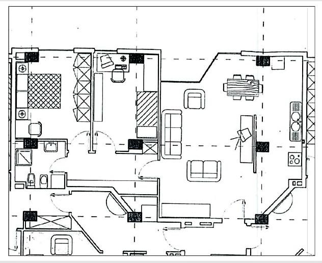
Apartamenti ka siperfaqe bruto 103m2 dhe siperfaqe neto 94.19m2.Organizohet ne ambient ndenje,kuzhine gatimi e ngrenie,2 dhoma gjumi,1tualet dhe 1ballkon.Ndodhet ne katin e 3-te te nje pallati te pajisur me ashensor. Hapsirat e bollshme dhe planimetria optimale e apartamentit ofrojne mundesine e ndarjes ne 2 apartamente.

➡️ Viti i ndertimit te pallatit 2012.

👉🏼 Zona eshte e preferueshme per banim dhe investim.

📐 Siperfaqe bruto: 103m2

📐 Siperfaqe neto: 94.19m2

🪜 Apartamenti ndodhet ne katin e 3-te .

🌞 Orientimi: Jug -Perendim

📄 Eshte i pajisur me çertifikate pronesie.

💶 Çmimi: 258,000 Euro

📲 Per nje informacion me te detajuar dhe nje vizite ne prone na kontaktoni ne numrin e telefonit te Agjensise Imobiliare

Cel. : 0699993835
 


WhatsApp
Location information
address
21 Dhjetori/Rr.Muhamet Gjollesha, Tirane, Shqiperi
Back
Top