Tirane, shitet apartament 2+1+Ballkon Kati 1, 108 m² 144.450 €
- Tirane
- Nr. Njesia - Zona me e afert?
- 7 Fusha Aviacionit
- Tipi
- apartament
- Siperfaqja m²
- 108 m²
- Nr dhoma
- 2+1
- Kati
- Kati 1
- Cmimi Euro
- 144450 €
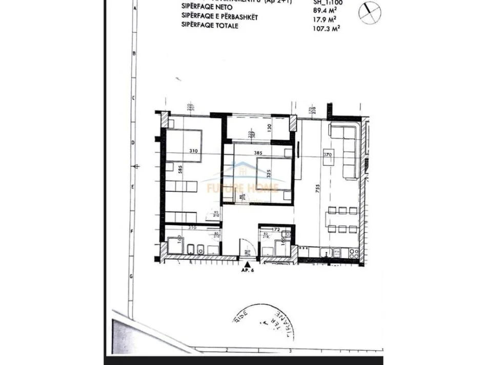
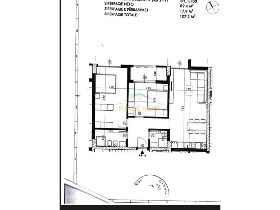
Shitet, Apartament 2+1+2, Fusha e Aviacionit, Tiranë.
Informacion mbi apartamentin:
• Sipërfaqja bruto: 89.4 m2.
• Sipërfaqja neto: 107.3 m2.
• Kati 1.
• Fazë tulle.
Organizimi:
• Ambient ndenje.
• Ambient gatimi.
• 2 Dhoma gjumi.
• 2 Tualete.
• Ballkon.
Cilësime të tjera:
• Planimetri Katrore
• Fasadë e ventiluar.
• Izolim termik dhe akustik.
• Ndertim i vitit 2025
Për një vizitë në pronë na kontaktoni!
Cel. : +355694070880
Informacion mbi apartamentin:
• Sipërfaqja bruto: 89.4 m2.
• Sipërfaqja neto: 107.3 m2.
• Kati 1.
• Fazë tulle.
Organizimi:
• Ambient ndenje.
• Ambient gatimi.
• 2 Dhoma gjumi.
• 2 Tualete.
• Ballkon.
Cilësime të tjera:
• Planimetri Katrore
• Fasadë e ventiluar.
• Izolim termik dhe akustik.
• Ndertim i vitit 2025
Për një vizitë në pronë na kontaktoni!
- Referenca:
PLUS60319
Cel. : +355694070880
Location information