JavaScript is disabled. For a better experience, please enable JavaScript in your browser before proceeding.
You are using an out of date browser. It may not display this or other websites correctly.
You should upgrade or use an
alternative browser .
Tirane, shitet apartament 2+1+2+Ballkon , 95 m² 85.000 € (Ulliri, Kamez)
Tirane
Nr. Njesia - Zona me e afert?
11 Instituti | Kamez | Paskuqan
Location Rruga + Nr.
Ulliri, Kamez
Tipi
apartament
Siperfaqja m²
95
m²
Nr dhoma
2+1
Cmimi Euro
85000
€
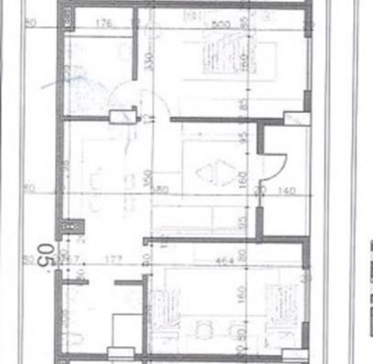
Shitet Apartament 2+1+2
Ulliri, Kamëz
95.47 m² sipërfaqe totale
Gati për mobilim
Pallat me fasadë të ventiluar
Planimetri funksionale & punime cilësore
Çmimi: 85.000 €
Kontakt: +355 69 419 8755
address
Ulliri, Kamez, Tirane, Shqiperi