Tirane, shitet apartament 2+1 , 129 m² 109.480 € (Kamez)
- Tirane
- Location Rruga + Nr.
- Kamez
- Tipi
- apartament
- Siperfaqja m²
- 129 m²
- Nr dhoma
- 2+1
- Cmimi Euro
- 109480 €
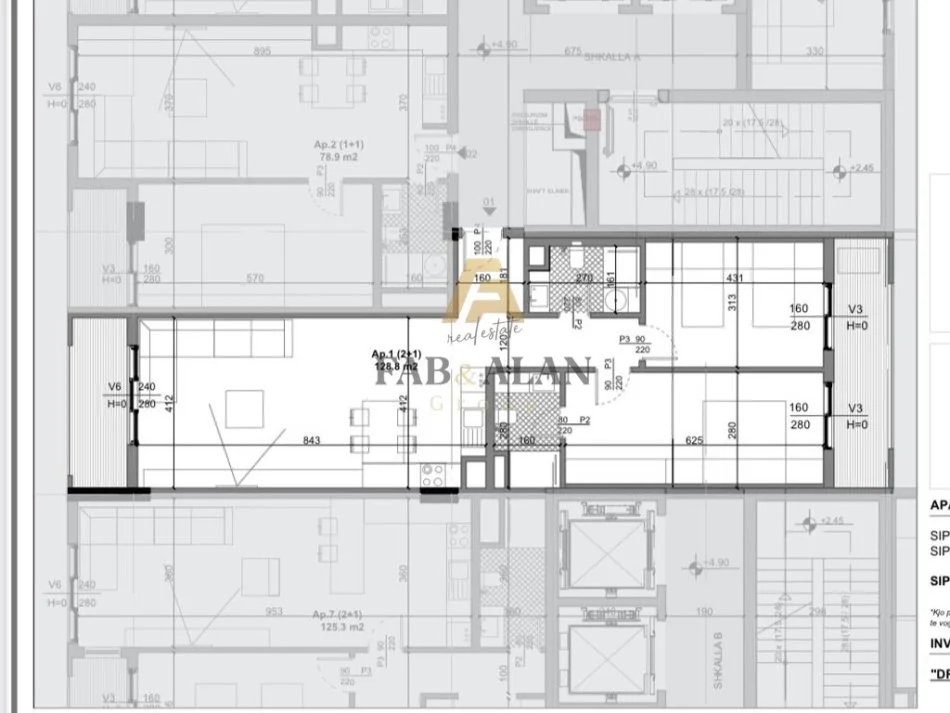
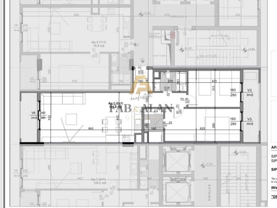
APARTAMENT PER SHITJE 2+1NE KAMEZ
Ky është plani arkitektonik i një apartamenti me tipologji 2+1, me sipërfaqe 128.8 m² (Ap.1).
Përshkrimi i apartamentit:
Apartamenti ofron një organizim shumë funksional dhe të ndriçuar natyralisht në çdo ambient. Zona e ditës përbëhet nga një sallon i gjerë me kuzhinë të integruar dhe dalje në ballkon që ofron ndjesi hapësire dhe pamje të këndshme.
Zona e natës ndahet nga korridori dhe përfshin dy dhoma gjumi komode, prej të cilave njëra ka dalje në ballkon privat. Apartamenti ka gjithashtu dy tualete të pajisura plotësisht dhe një depo të brendshme praktike për ruajtjen e sendeve.
Karakteristikat kryesore:
• Sipërfaqe totale: 128.8 m²
• Tipologjia: 2+1
• Sallon i bollshëm + kuzhinë moderne
• 2 dhoma gjumi
• 2 tualete
• 2 ballkone me dalje nga dhoma e ndenjes dhe dhoma e gjumit
• Depo e brendshme funksionale
• Ndriçim i bollshëm natyral falë dritareve të mëdha
Ky apartament përfaqëson një zgjedhje ideale për ata që kërkojnë komfort, funksionalitet dhe cilësi banimi, duke kombinuar hapësirat e bollshme me ndarjen perfekte të ambienteve.
APARTAMENT PER SHITJE 2+1NE KAMEZ
Ky është plani arkitektonik i një apartamenti me tipologji 2+1, me sipërfaqe 128.8 m² (Ap.1). 📐 Përshkrimi i apartamentit: Apartamenti ofron një organizim shumë funksional dhe të ndriçuar natyralisht në çdo ambient. Zona e ditës përbëhet nga një sallon i gjerë me kuzhinë të integruar dhe dalje...
fabalangroup.com
Cel. : +355692055138
Contact WhatsApp
Location information