• Tirane, shitet apartament 1+1 Kati 5, 64 m² 134.000 €

Tirane
Nr. Njesia - Zona me e afert?
1 Ali Demi | Tregu Elektrik
Tipi
apartament
Siperfaqja m²
64 m²
Nr dhoma
1+1
Kati
Kati 5
Cmimi Euro
134000
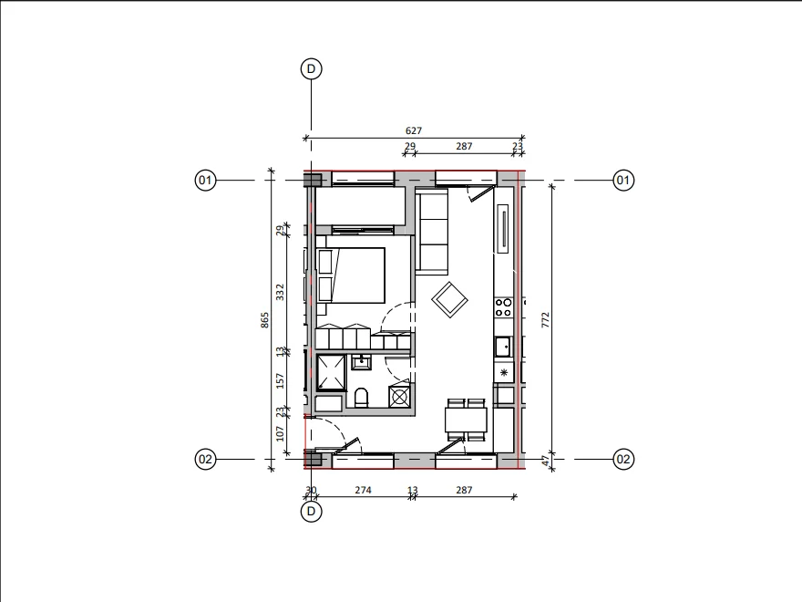
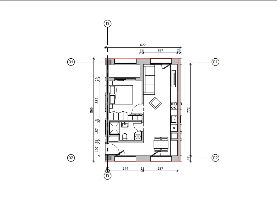
Ofrohet për shitje apartament modern 1+1 në Nokia Residence, një projekt bashkëkohor në zonën Ali Demi, Tiranë
Prona përfaqëson një zgjedhje ideale si për banim familjar ashtu edhe për investim afatgjatë në një rezidencë të re me standarde të larta ndërtimi.
📐 Të dhëna kryesore të pronës:
• Tipologjia: Apartament 1+1
• Sipërfaqe totale: 64.3 m²
• Sipërfaqe e brendshme:52.2 m²
• Kati: 5
• Orientimi: Lindje
• 1 Sallon + Kuzhinë
• 1 Dhome gjumi
• 1 Tualet me dritare
• Lartësia e katit: 2.78 m

✨ Karakteristika & Cilësi Ndërtimi:
• Fasadë termoizoluese dhe eficiencë energjetike
• Dritare alumini termik dhe hidroizolim i plotë
• Konstruksion antisizmik
• Instalime për kondicionim multisplit
• Tuba multistrat për furnizim uji
• Dyer të brendshme gjermane dhe derë e blinduar
• Laminat cilësor AC5 dhe pllaka porcelani në tualet
• Ambiente të gjelbra dhe hapësira relaksi në rezidencë
📍 Vendndodhja strategjike në Ali Demi ofron akses të shpejtë me qendrën e Tiranës dhe shërbime të shumta pranë si farmaci, stacion autobusi, markete dhe ambiente sociale.
💰 Çmimi: 134,000 €
📩 Na kontaktoni për planimetrinë, detaje shtesë dhe vizitë në pronë.
068 233 0273


#NokiaResidence #ApartamentNeShitje #Tirane #RezidenceRe #Apartament2plus1 #KrediBankare #Kontakt#ApartamentNeShitje
#Tirane#RezidenceRe#Apartament2plus1#KrediBankare#InvestimNeTirane#PasuriTePaluajtshme#NdertimIRi#StandardeTeLarta
#BaneseModerne#JeteseKomode#RealEstateAlbania#ShtepiNeTirane#InvestimIMire#Kontakt

Cel. : 0682330273
 


WhatsApp
Location information
address
1 Ali Demi | Tregu Elektrik, Tirane, Shqiperi
Back
Top