• Tirane, shitet apartament 1+1 Kati 3, 49 m² 69.500 € (fresku)

Tirane
Nr. Njesia - Zona me e afert?
3 Fresku | Linze
Location Rruga + Nr.
fresku
Tipi
apartament
Siperfaqja m²
49 m²
Nr dhoma
1+1
Kati
Kati 3
Cmimi Euro
69500
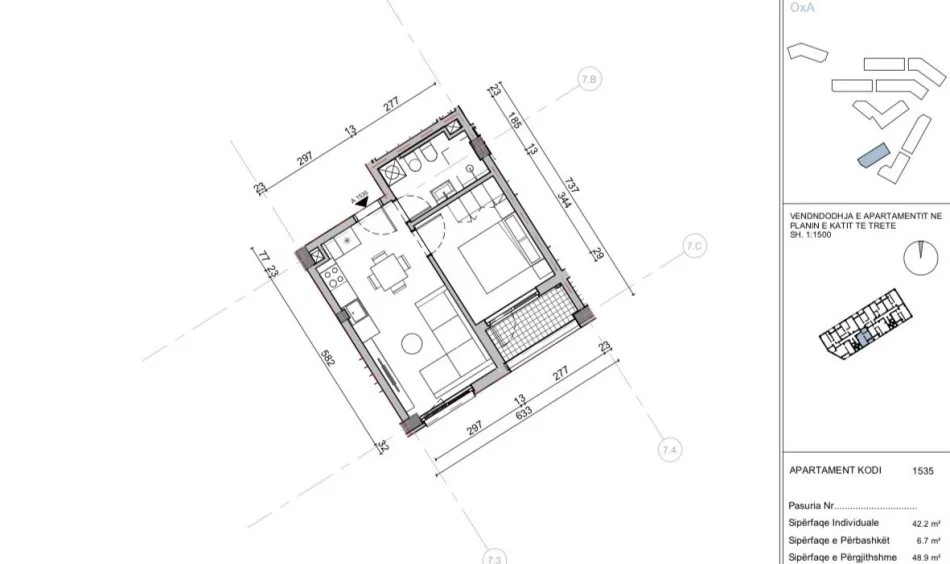
Apartament 1+1 për Shitje – Kompleksi Tom Doshi, Rruga Pano Lula, Shkozë
Ofrohet për shitje ky apartament 1+1 brenda Kompleksit Tom Doshi, një rezidencë moderne që ofron cilësi ndërtimi dhe standard jetese të lartë. Zona ka akses të menjëhershëm në kafene, restorante, dyqane, institucione dhe çdo lehtësi urbane.

Karakteristikat:

Tipologji: 1+1
Sipërfaqe neto: 42.2 m²
Sipërfaqe e përbashkët: 6.7 m²
Sipërfaqe bruto: 48.9m²

Një apartament me dritë natyrale të bollshme, në një ndër zonat më preferuara të Tiranes – ideal si për banim ashtu edhe për investim.

Cel. : 0689008022
 


WhatsApp
Location information
address
fresku, Tirane, Shqiperi
Back
Top