• Tirane, shitet apartament 1+1+Ballkon , 71 m² 74.801 € (Ringside Residences, Paskuqan)

Tirane
Nr. Njesia - Zona me e afert?
11 Instituti | Kamez | Paskuqan
Location Rruga + Nr.
Ringside Residences, Paskuqan
Tipi
apartament
Siperfaqja m²
71 m²
Nr dhoma
1+1
Cmimi Euro
74801
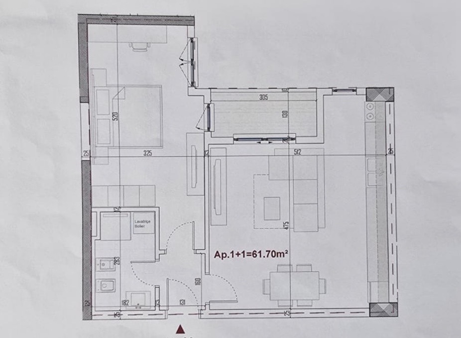
🏡 SHITET APARTAMENT 1+1 + BALLKON
📍 Ringside Residences, Paskuqan

✨ Detaje të Pronës:
📏 71.26 m² bruto | 📐 61.7 m² neto
🧱 Faza: Karabina
🧊 Fasadë e ventiluar – izolim i shkëlqyer termik & akustik
🌅 Orientim: Perëndim – dritë natyrale dhe perëndime fantastike
🏠 Planimetri funksionale dhe kubaturë perfekte

💶 Çmimi: 74,800€

📞 Kontakt: +355 69 419 8755
📩 Për më shumë info ose vizitë, më shkruani!
 


WhatsApp
Location information
address
Ringside Residences, Paskuqan, Tirane, Shqiperi
Back
Top