Tirane, shitet ambjent biznesi Kati 0, 90 m² 320.000 € (PRANË FUSHËS SË SPORTIT, TE “ALI DEMI”)
- Tirane
- Nr. Njesia - Zona me e afert?
- 1 Ali Demi | Tregu Elektrik
- Location Rruga + Nr.
- PRANË FUSHËS SË SPORTIT, TE “ALI DEMI”
- Tipi
- ambjent biznesi
- Siperfaqja m²
- 90 m²
- Kati
- Kati 0
- Cmimi Euro
- 320000 €
Sallon bukurie në shitje, me një vendodhje shumë të mire dhe me akses të lehtë për në qendër dhe në unazë, dhe me disa nga akset rrugore kryesore të Tiranës. Ndodhet pranë disa institucioneve arsimore, shoqërore, tregtare dhe këndeve të lojrave për fëmijë, në një nga zonat e preferuara të Tiranës.
Zona ofron supermarkete, shkolla, kopshte, cerdhe, bar/kafe, restorante, shërbime dhe rruge të dedikuara për këmbësore dhe bicikleta, etj.
Pallati është 7 kate me 1 kat parkimi nentoke. Ofron cilësi ndërtimi, termoizolim, hapësira të ndricuara, ashensor, siguri 24 orë, mirëmbajtje, shërbime të ndryshme afer etj.
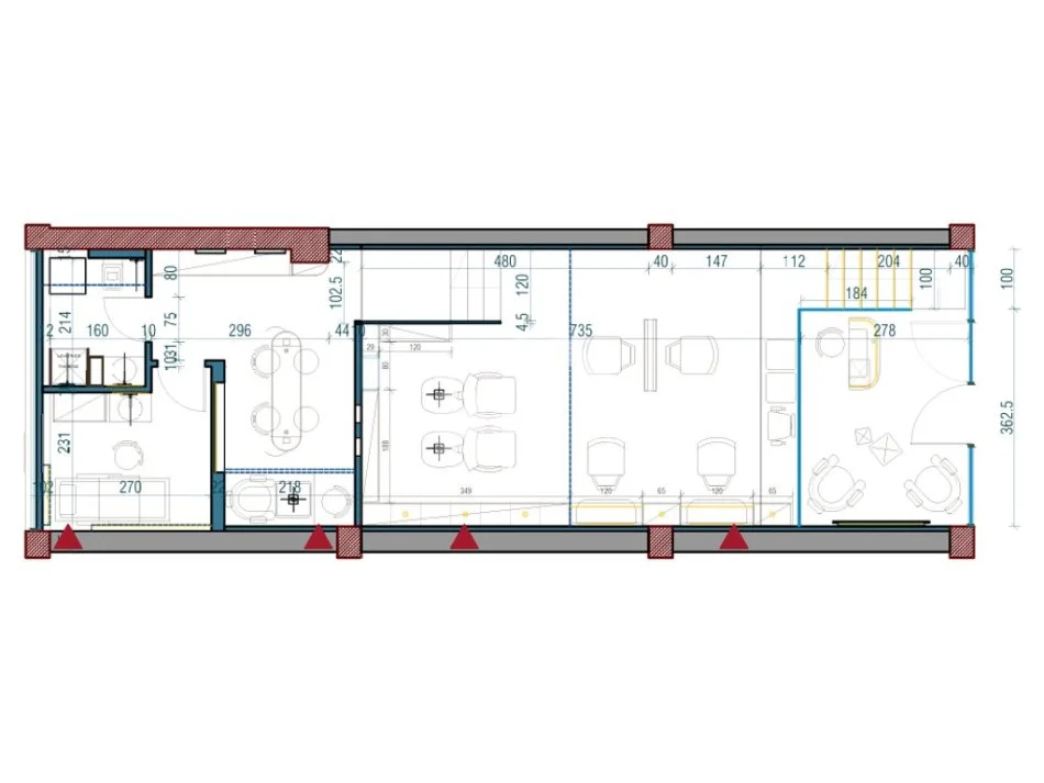
Sallon bukurie në shitje me sipërfaqe totale 90 m2, kati përdhe, me orientim veri. Përbëhet nga recepsioni dhe pritja në hyrje, 3 ambiente të cilat janë të ndara me mure dhe lidhja midis tyre bëhet nëpërmjet shkallëve anësore dhe tualeti.
Salloni ka super investim, me të gjitha pajisjet premium Maletti italiane dhe shitet totalisht i mobiluar.
https://inf-93.com/property/3869/prane-fushes-se-sportit-te-ali-demi-inf1717.html
Cel. : +355682050353
Zona ofron supermarkete, shkolla, kopshte, cerdhe, bar/kafe, restorante, shërbime dhe rruge të dedikuara për këmbësore dhe bicikleta, etj.
Pallati është 7 kate me 1 kat parkimi nentoke. Ofron cilësi ndërtimi, termoizolim, hapësira të ndricuara, ashensor, siguri 24 orë, mirëmbajtje, shërbime të ndryshme afer etj.
Sallon bukurie në shitje me sipërfaqe totale 90 m2, kati përdhe, me orientim veri. Përbëhet nga recepsioni dhe pritja në hyrje, 3 ambiente të cilat janë të ndara me mure dhe lidhja midis tyre bëhet nëpërmjet shkallëve anësore dhe tualeti.
Salloni ka super investim, me të gjitha pajisjet premium Maletti italiane dhe shitet totalisht i mobiluar.
https://inf-93.com/property/3869/prane-fushes-se-sportit-te-ali-demi-inf1717.html
Cel. : +355682050353
Contact WhatsApp
Location information