Tirane, shitet 2+1+BLK Kati 2, 119 m² 178.500 Euro
- Tirane
- Nr. Njesia - Zona me e afert?
- 9 Don Bosko | Jordan Misja | Bulevardi i Ri
- Siperfaqja m²
- 119 m²
- Nr dhoma
- 2+1
- Kati
- Kati 2
- Cmimi Euro
- 178500 €
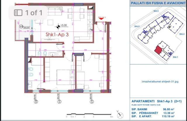
APARTAMENTE 2+1 NE SHITJE TE ISH FUSHA E AVIACIONIT
Orientim dhe kat sipas preferences
1500€ / m2
2+1 me sip 118,9m2, kati 2
2+1 me sip 124m2, kati 2
2+1 me sip 110,19m2, kati 3
NE FAZE NDERTIMI
Ndertimi ka cilesi te larte dhe standarte bashkekohore te banimit, me hapesira clodhese dhe e pozicionuar prane rrugeve kryesore.
⚜MUNDESI IDEALE PER BANIM !
Per cdo pyetje, informacion apo vizite ne prone na kontaktoni.
068 33 08 116
in House Real Estate
Cel. : 0683308116
⚜MUNDESI IDEALE PER BANIM !
Per cdo pyetje, informacion apo vizite ne prone na kontaktoni.
in House Real Estate
Cel. : 0683308116
Location information