• Tirane, shes Vile , 686 m² 1.800.000 € (Liqeni i Thatë)

Tirane
Nr. Njesia - Zona me e afert?
5 Liqeni thate | Kopshti Botanik
Tipi
Vile
Siperfaqja m²
686 m²
Cmimi Euro
1800000
Vila ndodhet ne nje nga Rezidencat me Elitare ne zonen e Liqenit te Thate "GREEN VALLEY".
I vendosur në një nga zonat më të gjelbra dhe të bukura të Tiranës, me një vendndodhje të lakmuar dhe magjepsëse.

Informacion mbi Vilën:
* Ndërtim i Ri (Faze perfundimtare)
* Vile 3 Katëshe
* Strukturë e Bashkengjitur
* Sipërfaqe Totale: 685,5 M2
* Sipërfaqe Ndërtim: 275,5 M2
* Sipërfaqe Truall: 410 M2
* Kubaturë e Rregullt
* Ndriçim Natyral në çdo Ambient
* Oborr i Gjelberuar
* Pishine Individuale (8m x 4m) (1,45m thellesi)

Organizimi:
* 3 Kate Vile

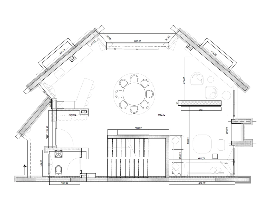
Kati 0:
* Sallon I Bollshem
* Kuzhine e vecuar
* Ambient Ngrenie
* 1 Tualet
* Te gjitha Ambientet aksesojne Oborrin e Viles

Kati 1:
* 3 Dhoma Gjumi
* Master Bedroom me garderobe walk-throw
* 3 Tualete ne secilen Dhome (me dritare)

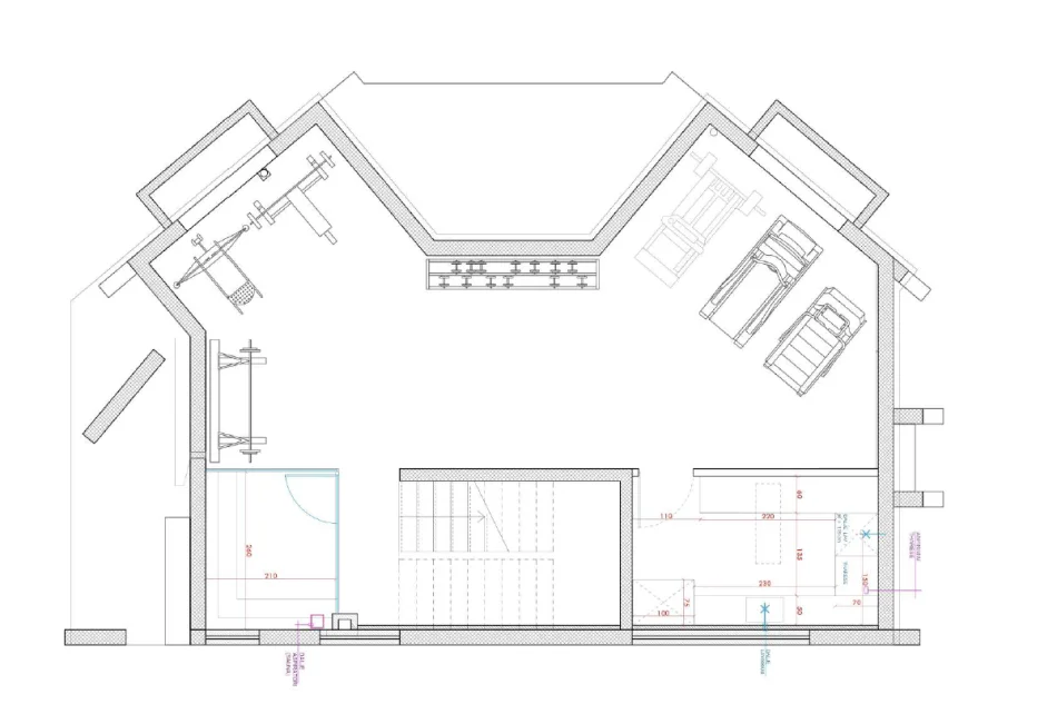
Kati -1:
* Hapesire open space (konceptuar per Palester)
* Lavanderi, Dhome Tharje
* Sauna
* Aspirim Natyral

Informacione te tjera:
* Projektuar cdo detaj me Zyre Arkitekture
* Investime Ekstra
* Sistem Kondicionimi Qendror Fujitsu ne cdo ambient
* Sistem ngrohje ne Dysheme per cdo kat
* Sistemet Elektrike & Hidraulike ekstra
* Tavane te varur
* 4 Poste Parkimi


✅ Ideale për Banim. Vilat në Green Valley kanë zonën e ditës të propozuar në katin 0 dhe zonën e natës në katin +1.
Këndi i shikimit të çdo vetrate është i studiuar me kujdes dhe hapësira të ketë ndriçim maksimal mes vetratave të larta që vazhdojnë në të dy katet.
Secila prej vilave është menduar me 2-3 poste parkimi të jashtme të mbuluara me strukturë të lehtë.
Kati nëntokë është i ventiluar në mënyrë natyrale dhe mund të përdoret për disa funksione si palester, home cinema, lavanteri, kantinë dhe magazinim.

Për një vizit në pronë më kontaktoni❗
Neom108424
 


WhatsApp
Location information
address
5 Liqeni thate | Kopshti Botanik, Tirane, Shqiperi
Back
Top