• Tirane, shes Vile 2 Katshe Kati 2, 436 m² 897.000 € (Blin Residence)

Tirane
Nr. Njesia - Zona me e afert?
2 TEG | Lunder | Farke | Mjull-Bathore
Location Rruga + Nr.
Blin Residence
Tipi
Vile
Siperfaqja m²
436 m²
Nr dhoma
4+1
Kati
Kati 2
Cmimi Euro
897000

Blin Residence, Shitet Vilë me Pishinë – Vija e dyte buzë Liqenit të Farkës​


Vilë individuale për shitje në një nga zonat më të kërkuara të Tiranës, me pamje të mrekullueshme dhe akses direkt në pedonalen e Liqenit. Objekti ka një arkitekturë moderne dhe ofron komoditet maksimal për jetesë cilësore, cilesi maksimale ndertimi.

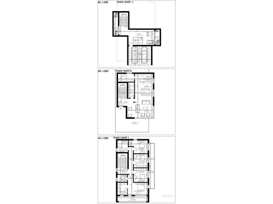
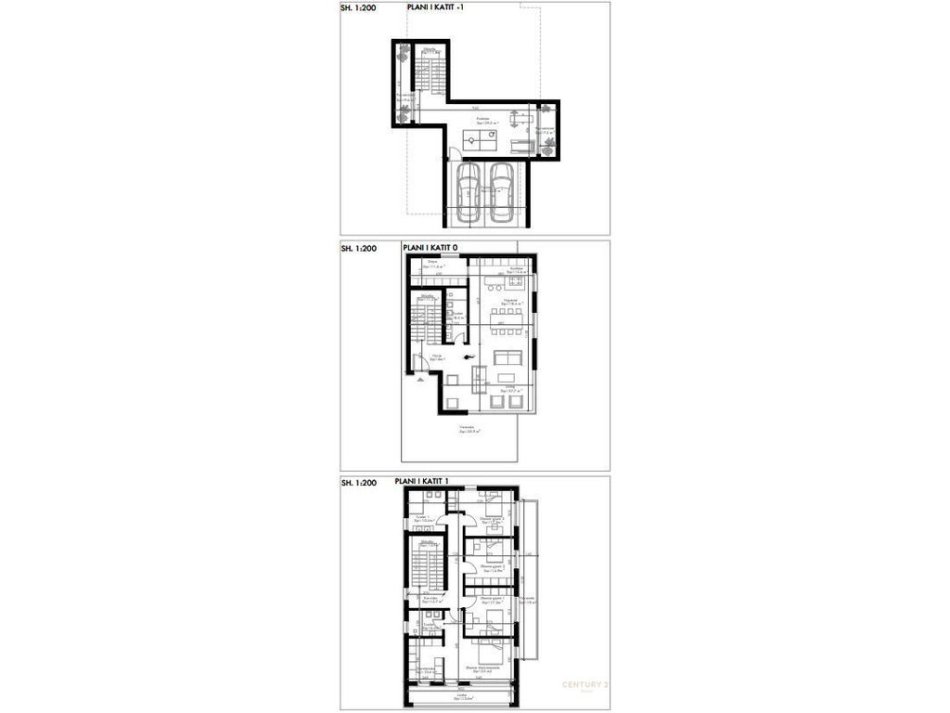
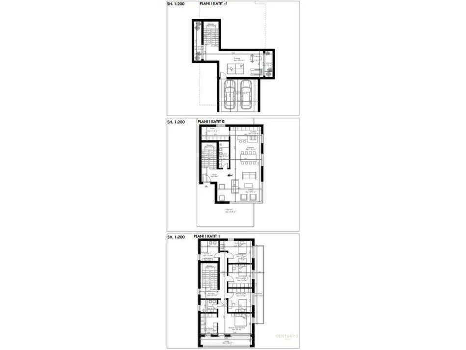
Te dhenat :
• Totali - 349.7 M2
• Verande - 53.9 M2
• Sip. parcele - 436 M2
• Pishine - 28.8 M2
• Sip. te perbashketa - 3.2 M2

Organizimi i brendshem
Kati -1 :
• Palester/Studio
• 2 Poste Parkimi
• 2 Puse Ndricimi

Kati 0 :
• Kuzhine
• Sallon ndenje
• Depo, Lavanderi
• Kuzhine + Ambient Ngrenie
• 1 Tualet
• Verande

Kati 1 :
• 4 Dhoma Gjumi
• 2 Tualete
• Garderobe
• Verande
• Lozhe

Mundesi pagese me Keste❗
- 30% Me lidhjen e kontrates.
- 30% Karabina
- 30% Rifinitur
- 10% Me dorezimin e celsave
bosko118295
Kontakto per te vizituar pronen.w

Cel. : 0688099922
 


Contact WhatsApp
Location information
address
Blin Residence, Tirane, Shqiperi
Back
Top