• Tirane, shes apartament 2+1+BLK Kati 7, 102 m² 270.900 Euro (Square 21/ Rruga e Kavajes)

Tirane
Nr. Njesia - Zona me e afert?
7 Rr. e Kavajes | 21 Dhjetori
Tipi
apartament
Siperfaqja m²
102 m²
Nr dhoma
2+1
Kati
Kati 7
Cmimi Euro
270900
Zona/Rruga : Square 21/ Rruga e Kavajes

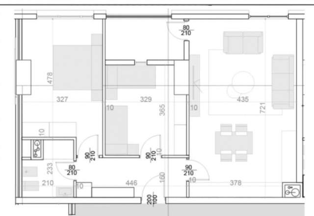
Apartamenti ndodhet tek “Square 21”, Rruga e Kavajes.
Informacion i pergjithshem:

  • Siperfaqe bruto 102.1 m2.
  • Siperfaqe neto 87.3 m2.
  • Kati i 7.
Organizimi:

  • Ambjent ndenje + Gatimi
  • 2 Dhoma Gjumi
  • 1 Tualet
  • Ballkon
Te dhena te tjera:

  • Apartamenti eshte ne faze ndertimi (karabina).
  • Cilesi e lartë ndërtimit.
  • Vendodhje elitare.
  • Fasada te ventiluara.
  • Sistem ngrohje/ftohje.
  • Sistemi Hidraulik tek Square 21 është realizuar duke përdorur teknologjine e REHAU.
  • Termo-izolom dhe Iizolim akustik.
  • Zone teper e preferuar e cila te ofron te gjitha facilitetet e nevojshem ne nje kohe te shkurter.
Per me shume informacion dhe nje vizite ne prone na kontaktoni!
ID e prones:
28858




Cel. : 0674108784
 


Contact WhatsApp
Location information
address
7 Rr. e Kavajes | 21 Dhjetori, Tirane, Shqiperi
Back
Top