Tirane, shes apartament 2+1+Ballkon Kati 1, 104 m² 120.000 € (Bridge Side Residence)
- Tirane
- Nr. Njesia - Zona me e afert?
- 11 Instituti | Kamez | Paskuqan
- Location Rruga + Nr.
- Bridge Side Residence
- Tipi
- apartament
- Siperfaqja m²
- 104 m²
- Nr dhoma
- 2+1
- Kati
- Kati 1
- Cmimi Euro
- 120000 €
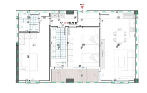
Apartamenti ndodhet ne Rrugen Demokracia, Bridge Side Residence, Kamez.
Informacion i pergjithshem:
ID e prones; 72354
Cel. : 0672277336
Informacion i pergjithshem:
- Siperfaqe totale: 104.98 m2.
- Siperfaqe neto: 89.73 m2.
- Kati i 1 banim.
- Ambient Ndenjie + Ambient Gatimi
- 2 Dhoma Gjumi
- 2 Tualete
- Ballkon
- Post parkimi
- Cilesi ndertimi.
- Kubature e rregullt.
- Orientimi Jug.
- Ne faze ndertimi. Ne faze pllakash.
ID e prones; 72354
Cel. : 0672277336
Contact WhatsApp
Location information