• Tirane, shes ambjent biznesi , 512 m² (Bukevardi Zhan Dark)

Tirane
Nr. Njesia - Zona me e afert?
3 Ministria e jashtme | Brryli
Location Rruga + Nr.
Bukevardi Zhan Dark
Tipi
ambjent biznesi
Siperfaqja m²
512 m²
Cmimi Euro
1

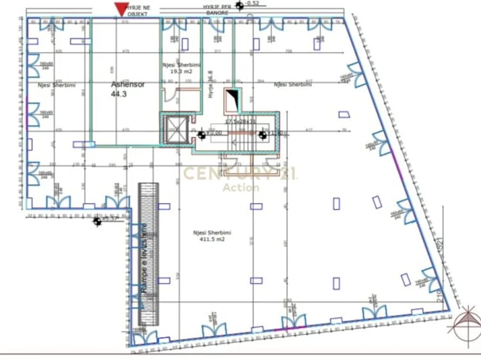
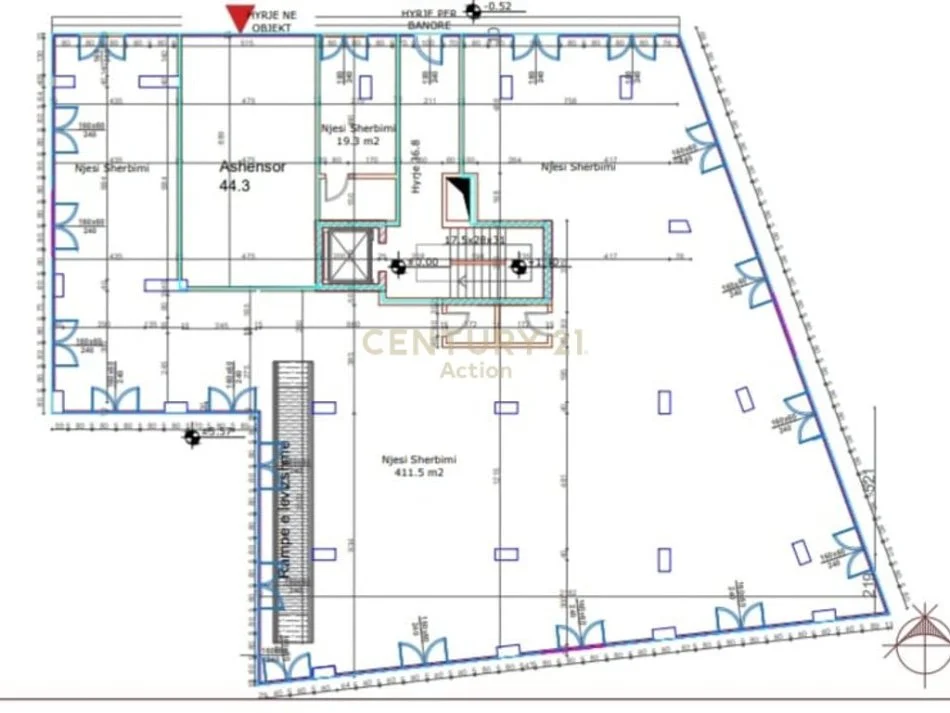
Ambient Komercial 3+1 Për Shitje në Brryl, Tiranë - Çmimi sipas kërkesës | 512 m²​


Ky ambient komercial 3+1 ndodhet në Brryl, Tiranë dhe është i disponueshëm për shitje, duke ofruar një hapësirë të bollshme për zhvillimin e biznesit tuaj.
• Sipërfaqe neto: 431 m²
• Sipërfaqe bruto: 512 m²
• Ndërtesë me 8 kate
• Proces hipotekimi në fazë certifikimi
• I përshtatshëm për biznese të ndryshme komerciale
Çmimi i negociueshem
• Për më shumë informacion, ju lutemi na kontaktoni!

Cel. : 0688099922
 


Contact WhatsApp
Location information
address
Bukevardi Zhan Dark, Tirane, Shqiperi
Back
Top