• Tirane, Liste me oferta dyqan Kati 0, 48 m²

Tirane
Nr. Njesia - Zona me e afert?
2 Rr. e Elbasanit | Shkolla Baletit
Tipi
dyqan
Siperfaqja m²
48 m²
Kati
Kati 0
🔘PRANE SHKOLLES SE BALETIT, RR. "MIHAL GRAMENO" PRANE SHKOLLES "MIHAL GRAMENO"

🔘EDHE PAK KANE NGELUR PER SHITJE !

🔘MOS E HUMBISNI KETE MUNDESI !

👌LOKACION PERFEKT DHE SHUME I KERKUAR PER BANIM OSE INVESTIM

🔘AFER QENDRES DHE AKSES ME RRUGET DHE PIKAT KRYESORE TE QYTETIT

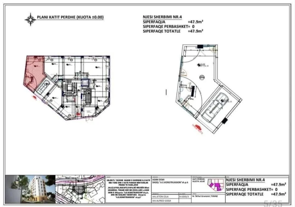
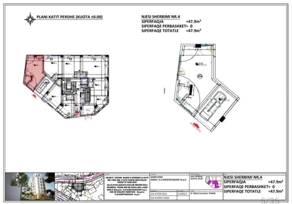
🏢SHITEN

🔹️️ DYQANE BUZE RRUGES KRYESORE ME SIPERFAQE 54 m² DHE 47.9 m²

🔸️POSTE PARKIMI NE - 1 DHE - 2

🔹️OBJEKT 7+1 KATE MBI TOKE DHE -2 NEN TOKE

🔸️️️️OBJEKT NE FAZE PERFUNDIMTARE MURATURE

🔹️NDERTIM DHE PUNIME CILESORE.

🔘️Per cdo imformocion me te hollesishem mund te me kontaktoni ne telefon ose whats app:

Cel: 0682333183


Cel. : 0682333183
 


WhatsApp
Location information
address
2 Rr. e Elbasanit | Shkolla Baletit, Tirane, Shqiperi
Back
Top