Apartament 2+1+2 ne shitje ne Mangalem!
- Tirane
- Nr. Njesia - Zona me e afert?
- 1 Ali Demi | Tregu Elektrik
- Tipi
- apartament
- Siperfaqja m²
- 97 m²
- Nr dhoma
- 2+1
- Kati
- Kati 3
- Cmimi Euro
- 1 €
Shiitet apartament 2+1+2 tualete, me certifikate pronesie tek Kompleksi Mangalem!
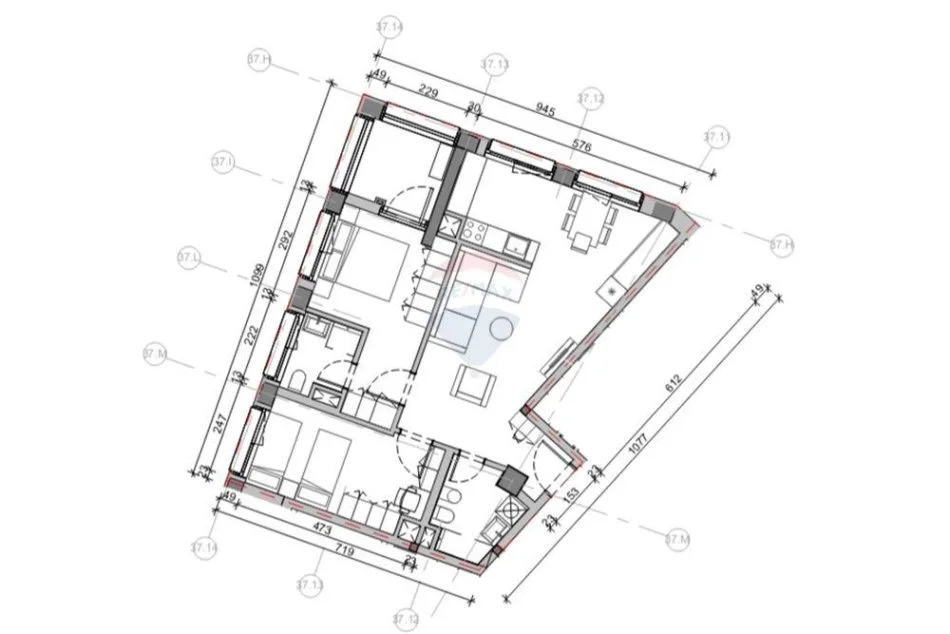
Apartamenti ka planimetri te rregullt dhe cdo hapesire te mireshfrytezuar dhe merr drite natyrale nga 3 orientimet veri perendim, lindje dhe jug.
Ka nje siperfaqe totale prej 97.6 m2 dhe eshte i organizuar nga hyrja kryesore ne korridor nga ku behet aksesi per ne sallonin e ndenjies se bashku me pjesen e gatimit. Dhomat jne te pozicionuara ne te dy anet e tjera te sallonit, ndersa njera prej tyre ka nje ballkon te tipit llozhe. Tualeti eshte me hapesire dhe me dritare.
Apartamenti shitet totalisht e mobiluar, sistenm kondicionimi multisplit. Aartamenti ka rifinitura cilesore, i shtruar me parket, tualeti incasso, dyer te brendshme, dritare dopio xham per izolim termik dhe akustik.
Kjo prone eshte ideale per banim dhe mundesi investimi pasi kompleksi dhe zona po njeh zhvillim te vrullshem.
Ky kompleks eshte i njohur per respektimin e ambienteve te perbashketa, hapesira te gjelbra, rifinitura bashkekohore si sistemi kapote dhe komunitet familjar.
Ne qershor pritet te pajiset me hipoteke.
Cel. : 0697536146
Apartamenti ka planimetri te rregullt dhe cdo hapesire te mireshfrytezuar dhe merr drite natyrale nga 3 orientimet veri perendim, lindje dhe jug.
Ka nje siperfaqe totale prej 97.6 m2 dhe eshte i organizuar nga hyrja kryesore ne korridor nga ku behet aksesi per ne sallonin e ndenjies se bashku me pjesen e gatimit. Dhomat jne te pozicionuara ne te dy anet e tjera te sallonit, ndersa njera prej tyre ka nje ballkon te tipit llozhe. Tualeti eshte me hapesire dhe me dritare.
Apartamenti shitet totalisht e mobiluar, sistenm kondicionimi multisplit. Aartamenti ka rifinitura cilesore, i shtruar me parket, tualeti incasso, dyer te brendshme, dritare dopio xham per izolim termik dhe akustik.
Kjo prone eshte ideale per banim dhe mundesi investimi pasi kompleksi dhe zona po njeh zhvillim te vrullshem.
Ky kompleks eshte i njohur per respektimin e ambienteve te perbashketa, hapesira te gjelbra, rifinitura bashkekohore si sistemi kapote dhe komunitet familjar.
Ne qershor pritet te pajiset me hipoteke.
Cel. : 0697536146
Location information