Search results

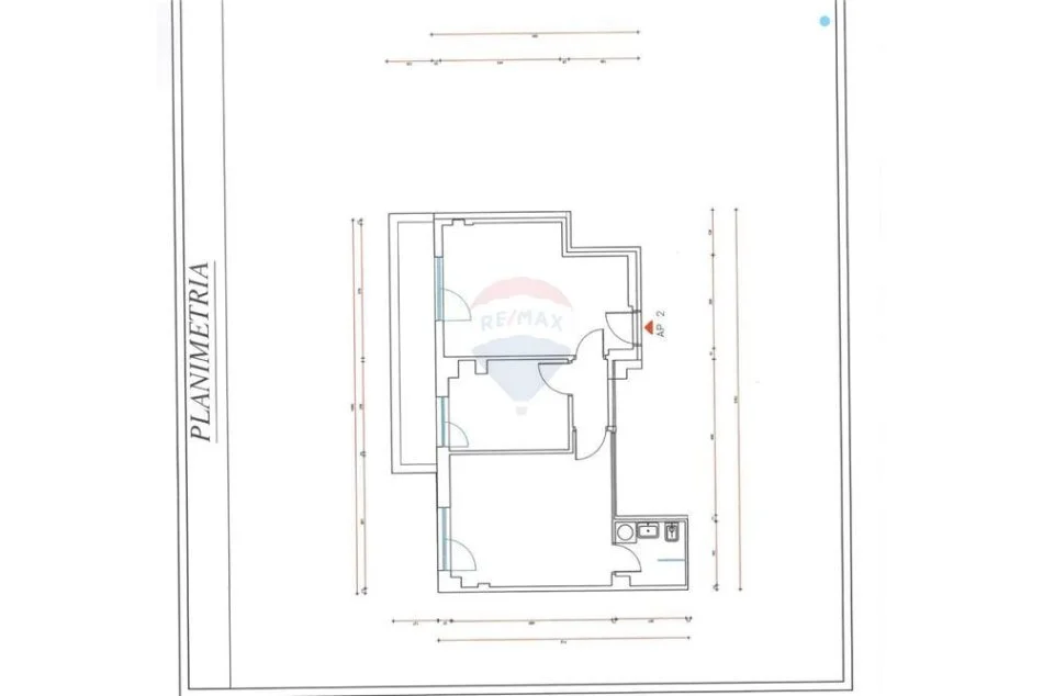
  1. Tirane, shitet 2+1 Kati 2, 160.000 € (Emerald Center - Rruga e Dibrës - Farmacia 10, Shqipëri)

    Ofrohet per shitje apartament 2+1 me siperfaqe 102.09 m2 , ne katin e 2. Apartamenti ka super planimetri ,me hapesira te rregullta dhe orientim Veri-Perendim.Organizohet ne nje sallon-kuzhine me dalje ne ballkon, ,dy dhoma gjumi, dy tualete nga ku njeri eshte me ajrosje natyrale. Rezidenca...
  2. Tirane, shitet 3+1 Kati 3, 193 m² 617.600 € (Liman Kaba - Komuna e Parisit, Shqipëri)

    Nese deshironi te jetoni ne zonen me kryesore te qytetit,nderthurur me pamjet mbreselenese te saj,ne ju ofrojme apartamentet me te reja te tipologjise 3 +1 tek Altana Residence. Planimetri te mireshfrytezuara,qe sjellin elegancë moderne të rafinuar me dritë natyrale që derdhet përmes dritareve...
  3. Tirane, shitet apartament 1+1 Kati 3, 50 m² 88.000 € (Arkitekt Sinani - Hoxha Tasim - Xhamlliku, Shqipëri)

    Shitet apartamen 1+1 prane Xhamllikut rruga Arkitekt Sinani. Apartamenti ndodhet ne katin e 3 pallat ekzistues. Apartametni oraganizohet ne sallon dhe ambient gatimi, nje dhome gjumi, nje tualet dhe nje ballkon. Orientimi Lindje-Perendim. Prona eshte nje mundesi shume e mire banimi dhe...
  4. Tirane, shitet apartament 1+1 Kati 2, 65 m² 82.250 € (Ish Fusha e Aviacionit - Fusha e Aviacionit, Shqipëri)

    Apartamenti ndodhet ne katin e dyte te nje pallati te ri, ne ndertim, te Fusha e Aviacionit. Pallati eshte nje nga me cilesoret ne zone, me fasade te ventiluar dhe akses te menjehershem ne rrugen Dritan Hoxha. Eshte i organizuar ne : Nje koridor i vogel shperndares Nje tualet Nje sallon se...
  5. Tirane, shitet apartament 1+1 Kati 1, 77 m² 115.000 € (Kompleksi Ferrari - Rruga Peti, Liqeni i Thate - Liqeni i Thatë, Shqipëri)

    Shitet apartament 1+1 tek tek kompleksi Ferrari, Liqeni Thate. Apartamenti shitet i mobiluar dhe eshte teper i mirembajtur. Momentalisht eshte i dhene me qira. Apartamenti ka siperfaqe totale 77m2, ku apartamenti eshte 60m2 dhe ka nje verande rreth 17m2. Apartamenti eshte i organizuar me...
  6. Tirane, shitet apartament 2+1 Kati 10, 94 m² 155.000 € (TIRANE - Tregu i Madh - Rruga 5 Maji, Shqipëri)

    Apartamenti ndodhet tek 5 Maji. Informacion mbi pronen: -Ndertim i ri -Siperfaqe totale 94.4m2 -Siperfaqe neto 84.3m2 -Kati 10 i fundit Organizimi: -Sallon ndenje -Ambient gatimi -2 Dhoma gjumi -2 Tualete Per nje vizite ne prone me kontakto! Cel. : 0684070021
  7. Tirane, shitet apartament 1+1 Kati 2, 65 m² 82.250 € (Ish Fusha e Aviacionit - Fusha e Aviacionit, Shqipëri)

    Apartamenti ndodhet ne katin e dyte te nje pallati te ri, ne ndertim, te Fusha e Aviacionit. Pallati eshte nje nga me cilesoret ne zone, me fasade te ventiluar dhe akses te menjehershem ne rrugen Dritan Hoxha. Eshte i organizuar ne : Nje koridor i vogel shperndares Nje tualet Nje sallon se...
  8. Tirane, shitet apartament 2+1 Kati 2, 104 m² 190.000 € (Rruga e Dibres - Rruga e Dibres - Rruga e Dibrës, Shqipëri)

    Shitet apartament 2+1 me 2 tualete tek kompleksi Tower Bridge! Apartamenti ndodhet ne nje kompleks te viteve te fundit te mireadministruar me te gjitha facilitetet. Apartamenti ka nje organizim dhe planimetri te rregullt. Eshte totalisht i mobiluar dhe investuar ne rifinitura, parket, sistem...
  9. Tirane, shitet apartament 2+1 Kati 8, 147 m² 138.000 € (Shkolla E Bashkuar - Rruga e Dibrës, Shqipëri)

    Apartament 2+1 Per Shitje Tek Shkolla E Bashkuar -Rruga e Dibres Apartamenti ndodhet ne katin e 8 te nje ndertimi te ri me ashensor . Ka siperfaqe totale 147.20m2 . siperfaqe ndertimi :76.20 m2 siperfaqe verande :64.39 m2 Organizohet ne 1 sallon,1 dhome ndenje sebashku me kuzhinen,2 dhoma...
  10. Tirane, shitet apartament 2+1 Kati 3, 80 m² 109.000 € (Ilia Xhokaxhi - Shkolla e Bashkuar - Shkolla e Bashkuar, Shqipëri)

    Apartamenti ndodhet ne katin e trete te nje pallati ekzistues, prane Shkolles "Bajram Curri", te kryqezimi i Shkolles se Bashkuar. Ofrohet plotesisht i mobiluar dhe eshte i sapo rikonstruktuar. Eshte i organizuar ne: Nje koridor shperndares Dy dhoma gjumi Nje ballkon i aksesueshem nga dhoma...
  11. Tirane, shitet 2+1 Kati 5, 155.000 € (TIRANE - Tregu i Madh - Rruga 5 Maji, Shqipëri)

    Apartamenti ndodhet tek 5 Maji. Informacion mbi pronen: -Ndertim i ri -Siperfaqe totale 94.4m2 -Siperfaqe neto 84.3m2 Organizimi: -Sallon ndenje -Ambient gatimi -2 Dhoma gjumi -2 Tualete Per nje vizite ne prone me kontakto! Cel. : 0684070021
  12. Tirane, shitet apartament 1+1 Kati 3, 65 m² 125.000 € (Rruga e Kavajes - 21 Dhjetori - 21 Dhjetori, Albania)

    Apartament 1+1 per shitje prane 21 Dhjetorit, i pozicionuar prane Rruges se Kavajes. Ndodhet ne katin e 3-te te nje pallati ekzistues. Siperfaqja e apartamentit eshte 65 m2 (neto). Apartamenti organizohet ne nje korridor ne hyrje, dhome ndenje & kuzhine me ballkon te mbyllur, nje dhome gjumi...
  13. Tirane, shitet apartament 1+1 Kati 6, 70 m² 110.000 € (Rruga Idriz Dollaku - Ali Demi, Shqipëri)

    Shitet Apartament 1+1 tek Ali Demi, prane Burgut te Grave . Apartamenti organizohet ne 1 sallon , dhome gjumi ,1 tualet dhe 1 ballkon. Objekti ku ndodhet apartamenti eshte me ashensor dhe i mire-mbajtur. Zona ne te cilet ndodhet eshte nje zone mjaft e mire dhe qe ofron te gjitha facilitete e...
  14. Tirane, shitet apartament 2+1 Kati 1, 86 m² 137.699 € (Rruga Muhamet Gjollesha - 21 Dhjetori, Albania)

    Shitet apartament 2+1+2 ne zonen e 21 Dhjetorit, shume prane rruges kryesore. Apartamenti ndodhet ne katin e 1 te nje pallati ekzistues, me lartesi te konsiderueshme nga toka. Eshte i organizuar ne nje korridor shperndares ,dy dhoma gjumi, dy tualete dhe nje ballkon. Zona ne te cilen ndodhet...
  15. Tirane, shitet apartament 2+1 Kati 6, 101 m² 141,400 € (Rruga Jordan Misja - Treni - Bulevardi i Ri, Albania)

    Ne zonen prane Bulevardit te Ri te rruga Jordan Misja ofrojme apartament te tipologjise 2+1+2 per shitje. Apartamenti ndodhet ne katin e 6 te nje ndertimi te ri me fasade te ventiluar. Me akses te menjehershem ne Bulevardin e Ri kjo zone ka intensitet te larte te zhvillimit infrastrukturor...
  16. Tirane, shitet apartament 2+1 Kati 5, 108 m² 188,000 € (Don Bosko - Don Bosko, Albania)

    Shitet apartament 2+1+2 ne Don Bosko. Apartamenti eshte i organizuar ne nje koridor i cili ben shperndarjen e 2 dhomave te gjumit ,kuzhines si dhe 2 tualeteve Apartamenti ndodhet ne katin e 5 me pamje nga rruga kryesore ,me sip neto 97.7 m/2 dhe siperfaqe totale 108 m2 ,me orientim jug-lindje ...
  17. Tirane, shitet apartament 2+1 Kati 6, 105 m² 147,000 € (Rruga Jordan Misja - Treni - Bulevardi i Ri, Albania)

    Ne zonen prane Bulevardit te Ri te rruga Jordan Misja ofrojme apartament te tipologjise 2+1+2 per shitje. Apartamenti ndodhet ne katin e 6 te nje ndertimi te ri me fasade te ventiluar. Me akses te menjehershem ne Bulevardin e Ri kjo zone ka intensitet te larte te zhvillimit infrastrukturor...
  18. Tirane, shitet apartament 3+1 Kati 6, 143 m² 235,000 € (Don Bosko - Gener II - Don Bosko - Gener 2, Albania)

    Apartamenti ndodhet ne katin e gjashte te nje prej objekteve me cilesore ne hyrje te Don Boskos! Ndertim i nje nga kompanite me Serioze ne treg, Gener II, perballe Vizion Plus! Apartamenti organizohet ne nje sallon ndenje me ambjent gatimi te vecuar, tre dhoma gjumi, dy tualete, korridor...
  19. Tirane, shitet apartament 1+1 Kati 1, 76 m² 106,600 € (kompleksi fratari - Astir, Albania)

    Shitet apartamenti 1+1 tek kompleksi Fratari ne Astir. Zona ne te cilen ndodhet te ofron te gjitha facilitetet per nje jetese sa me komode. Organizohet ne nje korridor qe ben shperndarjen ne sallon se bashku me kuzhinen, nje dhome gjumi, nje ballkon dhe nje tualet. Ndodhet ne katin e 1 banim...
  20. Tirane, jepet me qera apartament 2+1 Kati 7, 80 m² 165,000 € (Rruga e Dibres - Kompleksi Halili - Rruga e Dibrës - Selvia, Albania)

    Apartamenti ndodhet ne nje nga zonat me te lakmuara te Tiranes, te Kompleksi Halili ne Rrugen e Dibres. Ndodhet ne katin e shtate, me ashensor, te kompleksit. Apartamenti eshte i sapo rikonstruktuar dhe shtruar me parket. Eshte i organizuar ne: Nje sallon se bashku me kuzhinen Nje ballkon qe...
  21. Tirane, shitet apartament 2+1 Kati 5, 101 m² 130,000 € (FRESK - Fresku, Shqipëri)

    Apartament 2+1 Per Shitje Ne Zonen e Freskut . Organizohet nga 1 dhome ndenje bashke me ambientin e gatimit, 2 dhoma gjumi,2 tualet dhe 1 ballkon. Ndodhet ne katin e pare banim, te nje pallati te ri dhe te mireadministruar. Mundesi shume e mire per banim ose investim. Zona ku ndodhet apartamenti...
  22. Tirane, jepet me qera apartament 2+1 Kati 7, 100 m² 500 € (Rruga Endri Keko - Ish Venue (Brryli) - Brryli, Albania)

    Sjellim per qira apartament 2+1+2 tualete . Apartamenti ndodhet prane Brrylit,zona e ish Venue,te rruga Endri Keko.Ndodhet ne katin e 7 te nje pallati te ri e te mireadministruar.Akartamenti eshte i mireinvestuar ,shtruar me parket,mobilim i mire ,punime cilesore te bera nga pronari se fundmi...
  23. Tirane, shitet apartament 1+1 Kati 2, 67 m² 97,000 € (Rruga PASHO HYSA - Ali Demi, Shqipëri)

    Apartamet 1+1 Kompleksi Mangalem Apartamenti ndodhet në një nga rezidencat më të mira të kryeqytetit Apartameti ndodhet në katin e 2 banimi. Ka një planimetri të rregullt dhe ndahet në: 1- Dhome e ndenjes së bashku me pjesën e kuzhinës 2- Nje dhoma gjumi me shume hapesire 3- Ballkon 4- Nje...
  24. Tirane, shitet apartament 2+1 Kati 1, 105 m² 175,000 € (Xhamlliku - Porcelan - Xhamlliku, Shqipëri)

    Shitet apartament 2+1+2+Depo me hipoteke Siperfaqje totale 105.46 m2 bruto Siperfaqje neto 90.3 m2 Rezidenca Asl2 , Xhamlliku Kati i 2 teknik , i pari banim Orientim perendim. Per me shume informacione ju ftoj te me kontaktoni! Cel. : 0684070021
  25. Tirane, shitet apartament 2+1 Kati 3, 105 m² 130,000 € (Astir - Rruga Aleksandri i Madh - Astir, Albania)

    Shesim apartament 2+1+2 prane Jata Market,ne zonen e Astirit. Ndertesa ne te cilin ndodhet apartamenti eshte e re,me ashensor,ne katin e trete. Apartamenti ka siperfaqe 105 m2,organizuar ne hyrje nga korridori, salloni i ndenjes me dalje ne ballkon, dy dhoma gjumi dhe dy tualete (njeri me...
  26. Tirane, shitet apartament 1+1 Kati 4, 72 m² 99,000 € (Rr. Mikel Maruli - Astir-Bar Artisti - Astir, Albania)

    Shitet apartament 1+1 ne Astir,prane Bar Artistit. Apartamenti ndodhet ne nje pallat me ashenor te mire administruar. Prona eshte e rinovuar dhe investuar se fundmi dhe e pabanuar me pare. Apartamenti shitet si ne foto dhe disponon dokumentacion te rregullt hipotekor. Orientimi : Veri - Perendim...
  27. Tirane, shitet apartament 2+1 Kati 6, 129 m² 210,000 € (Hamdi Sulcebe - Tregu i Madh - Rruga 5 Maji, Albania)

    Shitet apartament 2+1+2 prapa tregut te madh, ne nje pallat te sapondertuar. Apartamenti gjendet ne katin e 6 dhe eshte i organizuar nga nje sallom i madh, me kend gatimi me vete dhe ballkon, nje koridor qe ben shperndarjen ne dy dhomat e gjumit, ne nje tualet qendror dhe ne nje depo e cila...
  28. Tirane, shitet apartament 1+1 Kati 3, 56 m² 148,000 € (21 Dhjetori - 21Dhjetori - 21 Dhjetori, Albania)

    Shitet apartament 1+1 te 21 Dhjetori! Aprtamenti ka nje siperfaqe totale prej 56 m2 bruto dhe 48 m2 neto . Ambienti eshte i investuar ne detaje dhe shitet i mobiluar. Zona ne te cilen ndodhet godina eshte nje benefit pasi ka nje kerkese te larte si per banim ashtu dhe investim. Punimet extra ◦...
  29. Tirane, shitet apartament 2+1 Kati 6, 68 m² 165,000 € (Rruga Fadil Rada - Pazari i Ri - ATSH, Albania)

    Apartament per shitje tek ATSH, Pazar i Ri! Ofrohet per shitje apartament i pamobiluar. Organizohet nga nje korridor ku behet shperndarja e dhomave sallon kuzhine dalje ne ballkon, dhome per femije, dhome martesore, tualet. Orientimi veri-perendim. Vendodhja prane Pazarit te Ri, akses i...
  30. Tirane, shitet apartament 1+1 Kati 7, 77 m² 127,300 € (Fusha e Aviacionit - Fusha e Aviacionit, Albania)

    APARTAMENT 1+1 PER SHITJE, REZIDENCA TURDIU Apartamenti ndodhet ne Garden Residence Turdiu, ish Fusha e Aviacionit. Informacion mbi pronen: - Ndertim i ri i sapo perfunduar - Siperfaqe bruto 77.15 - Orientimi Lindje - 3 Ashensore dhe 2 kate nentoke per mundesi parkimi - Hapesira te gjelberuara...
Back
Top