Shtepi ne shitje

apartamente ne shitje - Objekte banimi rezidenciale, banesa, garsoniere, vila

Filters

Tirane
Nr. Njesia - Zona me e afert?
3 Fresku | Linze
Location Rruga + Nr.
Rruga Dalip Topi
Tipi
apartament
Nr dhoma
1+1
Kati
Kati 1
Cmimi Euro
80000
SUPER OKAZION‼️‼️ ❌NUK PRANOHET ME KREDI❌ Shitet apartament 1+1 Mundesi e mire investimi, per momentin eshte e dhene me qera 400€/muaj Apartamenti...
Tirane
Location Rruga + Nr.
FARKE
Tipi
apartament
Siperfaqja m²
112 m²
Nr dhoma
2+1
Kati
Kati 3
Cmimi Euro
224000
SUPER APARTAMENT PER SHITJE TEK LIQENI I FARKES. Nje nga zonat me te kerkuara periferike te Tiranes ku mbizoteron qetesia, relaxi dhe ajri i...
Tirane
Nr. Njesia - Zona me e afert?
7 Rr. e Kavajes | 21 Dhjetori
Location Rruga + Nr.
Rruga Artan Lenja, Kompleksi Magnet
Tipi
apartament
Siperfaqja m²
68 m²
Nr dhoma
2+1
Kati
Kati 10
Cmimi Euro
163000
Ne nje nga komplekset familjare me te kerkuar ne Tirane ofrojme per shitje apartament te tipologjise 2+1. Me nje siperfaqe totale 68 m2 por e...
Tirane
Nr. Njesia - Zona me e afert?
5 Selite | Kodra e Diellit
Location Rruga + Nr.
Rezidenca Kodra e Diellit 1
Tipi
apartament
Siperfaqja m²
72 m²
Nr dhoma
1+1
Kati
Kati 1
Cmimi Euro
170000
Shitet, Apartament 1+1+Verandë, Rezidenca Kodra e Diellit 1, Tiranë. Informacion mbi apartamentin: • Sipërfaqja bruto: 72.4 m2. • Sipërfaqja neto...
Tirane
Nr. Njesia - Zona me e afert?
6 Astir | Unaza e re | Teodor Keko
Tipi
apartament
Siperfaqja m²
92 m²
Nr dhoma
2+1
Cmimi Euro
146000
EKSKLUZIVE Astir, prane Syri TV 146.000 EURO Shesim apartament 2+1. Sip 92 m² neto. Pallat i ri me hipoteke. Planimetri e rregullt...
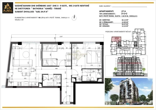
APARTAMENT NE SHITJE 2+1+2 TE KODRA DIELLIT 2 , TIRANE kati 2 pa hipoteke sip bruto 93m2 sip neto 77.9m2 Cmimi 180000 euro
Tirane
Nr. Njesia - Zona me e afert?
6 Astir | Unaza e re | Teodor Keko
Tipi
apartament
Siperfaqja m²
92 m²
Nr dhoma
2+1
Kati
Kati 7
Cmimi Euro
134860
Disponojmë Apartament 2+1+2+Post Parkimi.. Apartamenti ndodhet tek Aos Konstruksion 2 Unaza e Re. Informacion mbi pronën: • Sipërfaqe Bruto...
Tirane
Nr. Njesia - Zona me e afert?
11 Instituti | Kamez | Paskuqan
Location Rruga + Nr.
Residenca Metropolitan, Kamëz
Tipi
apartament
Siperfaqja m²
101 m²
Nr dhoma
2+1
Kati
Kati 8
Cmimi Euro
85765
Shitet, Apartament 2+1+2, Residenca Metropolitan, Kamëz. Informacion mbi apartamentin: • Sipërfaqja bruto: 100.9 m2. • Sipërfaqja neto: 90.4 m2. •...
Tirane
Nr. Njesia - Zona me e afert?
11 Instituti | Kamez | Paskuqan
Location Rruga + Nr.
Kompleksi Venatino 2, Kamëz, Tiranë
Tipi
apartament
Siperfaqja m²
103 m²
Nr dhoma
2+1
Cmimi Euro
80800
Shitet Apartament 2+1 me vendodhje në kompleksin Venatino 2 në Kamëz. Informacion mbi apartamentin: * Sipërfaqja e apartamentit (bruto) :103.62...
Tirane
Nr. Njesia - Zona me e afert?
3 Fresku | Linze
Location Rruga + Nr.
pranë Bunkart
Tipi
apartament
Siperfaqja m²
65 m²
Nr dhoma
1+1
Kati
Kati 2
Cmimi Euro
108000
Shitet, Apartament 1+1, Fresk, Tiranë. Apartamenti ndodhet pranë Bunkart. Informacion mbi apartamentin: • Sipërfaqja bruto: 64.61 m2. • Sipërfaqja...
Tirane
Nr. Njesia - Zona me e afert?
5 Komuna Parisit | Kristal Center
Location Rruga + Nr.
Komuna e Parisit, Tirane
Tipi
apartament
Siperfaqja m²
53 m²
Nr dhoma
1+1
Kati
Kati 2
Cmimi Euro
145000
Shitet, Apartament 1+1, Komuna e Parisit, Tirane Informacion mbi apartamentin: • Siperfaqia neto : 53.3 m² • Kati i 2 Organizimi: • Ambjent...
Tirane
Nr. Njesia - Zona me e afert?
9 Don Bosko | Jordan Misja | Bulevardi i Ri
Location Rruga + Nr.
Rruga Jordan Misja, Tiranë
Tipi
apartament
Siperfaqja m²
71 m²
Nr dhoma
1+1
Kati
Kati 7
Cmimi Euro
155000
Apartamenti ndodhet në një kompleks të ri,buzë rrugës kryesore. Informacioni mbi apartamentin: * Sipërfaqja e apartamentit (Bruto): 71 m2 *...
Tirane
Nr. Njesia - Zona me e afert?
11 Instituti | Kamez | Paskuqan
Location Rruga + Nr.
kamez
Tipi
apartament
Siperfaqja m²
70 m²
Nr dhoma
1+1
Kati
Kati 8
Cmimi Euro
63652
Shitet, Apartament 1+1,Kompleksi Mëhillaj Kamëz. Informacion mbi apartamentin: * Sipërfaqja bruto: 70.35 m2. * Sipërfaqja neto: 60.23 m2. * Kati...
Tirane
Nr. Njesia - Zona me e afert?
5 Komuna Parisit | Kristal Center
Tipi
apartament
Siperfaqja m²
110 m²
Nr dhoma
2+1
Kati
Kati 3
Cmimi Euro
225000
Disponojmë Apartament 2+1 për shitje, ne Rrugen "Tish Dahia, Komuna Parisit , Tiranë. Informacion mbi apartamentin: • Sipërfaqja e apartamentit...
Durres
Nr. Njesia - Zona me e afert?
6 Yzberisht | Misto Mame
Location Rruga + Nr.
yzberishte
Tipi
apartament duplex
Siperfaqja m²
52 m²
Nr dhoma
1+1
Kati
Kati 6
Cmimi Euro
400
Jepet me Qera Apartament 1+1 📍 Yzberisht, Kati i 6, pallat i ri me ashensor 📐 51.1 m² 🏠 Apartamenti është totalisht i mobiluar dhe i pabanuar...
Tirane
Nr. Njesia - Zona me e afert?
3 Xhamlliku | Oxhaku | Profarma
Tipi
apartament
Siperfaqja m²
124 m²
Nr dhoma
2+1
Kati
Kati 5
Cmimi Euro
186600
🌆Shitet Apartament 2+1 te Kompleksi Mirabela te Oxhaku! 📏Sipërfaqe : 124 m² 🪜Kati: 5 me ashensor ✨Organizohet ne: ▫️Sallon ndenjeje, ▫️Ambient...
Tirane
Location Rruga + Nr.
Brryli
Tipi
apartament
Siperfaqja m²
89 m²
Nr dhoma
2+1
Kati
Kati 2
Cmimi Euro
190000
Shesim apartament 2+1 ne zonen e Brrylit. Apartamenti ndodhet ne nje pallat te ri sapoperfunduar, ne katin e dyte te banimit. Organizohet ne nje...
Durres
Nr. Njesia - Zona me e afert?
11 Autostrada Tr.-Dr.
Location Rruga + Nr.
Shkembi i Kavajes
Tipi
apartament
Siperfaqja m²
50 m²
Nr dhoma
1+1
Kati
Kati 2
Cmimi Euro
65000
📌Shitet Apartment 1+1 në Durrës, Shkëmbi i Kavajës📍 💶 Çmimi: 65.000€ 🛋️ Informacion mbi apartamentin: 📐 Sipërfaqja bruto: 50 m² 📏 Sipërfaqja...
Tirane
Nr. Njesia - Zona me e afert?
5 Selite | Kodra e Diellit
Tipi
apartament
Siperfaqja m²
66 m²
Nr dhoma
1+1
Cmimi Euro
162000
Apartament 1+1 per shitje Shitet apartament modern 1+1 me sipërfaqe 66 m² në zonën elitare të Kodrës së Diellit. Ambienti është i investuar me...
Tirane
Nr. Njesia - Zona me e afert?
7 Rr. e Kavajes | 21 Dhjetori
Location Rruga + Nr.
Rruga Muhamet Gjollesha
Tipi
apartament
Apartamente për Shitje – Rruga Muhamet Gjollesha, Tiranë Në një nga zonat më të kërkuara dhe të zhvilluara të Tiranës ka nisur një projekt i ri...
Tirane
Nr. Njesia - Zona me e afert?
1 Ali Demi | Tregu Elektrik
Location Rruga + Nr.
Kompleksi Kaimi
Tipi
apartament
Siperfaqja m²
60 m²
Nr dhoma
1+1
Kati
Kati 4
Cmimi Euro
95000
Apartament për Shitje – Kompleksi Kaimi, Tiranë • Sipërfaqe: 60 m² • Kati: 4 • Orientimi: Veriperëndim • Çmimi: 95,000 € (i diskutueshëm) •...
Tirane
Nr. Njesia - Zona me e afert?
3 Fresku | Linze
Location Rruga + Nr.
Rruga Sotir Caci
Tipi
apartament
Siperfaqja m²
55 m²
Nr dhoma
1+1
Kati
Kati 3
Apartament për Shitje – Fresku,Tiranë Sipërfaqe totale: 54.9 m² Ballkon i mbyllur: 5.8 m² Sipërfaqe e përbashkët: 8.8 m² Vendndodhje: Përballë...
Tirane
Nr. Njesia - Zona me e afert?
7 Rr. e Kavajes | 21 Dhjetori
Tipi
apartament
Siperfaqja m²
90 m²
Nr dhoma
1+1
Cmimi Euro
179000
Ekskluzive Hora Vertical, prane 21 Dhjetori, shesim: 1+1 Siperfaqe 90m2!!! Pallat i ri ne ndertim!!! 179.000 euro 069 608 5775 Cel. ...
Durres
Tipi
apartament
Siperfaqja m²
50 m²
Nr dhoma
1+1
Kati
Kati 2
Cmimi Euro
65000
🏢Shitet Apartment 1+1 në Durrës, Shkëmbi i Kavajës 🛋️ Informacion mbi apartamentin: 📐 Sipërfaqja bruto: 50 m² 📏 Sipërfaqja neto: 46 m² 🏙️ Kati...
Tirane
Nr. Njesia - Zona me e afert?
2 TEG | Lunder | Farke | Mjull-Bathore
Tipi
Vile
Siperfaqja m²
238 m²
Prone EKSKLUZIVE! Rolling Hills Farke, shesim: Super vile 2 kateshe!!! Sip ndertimi 238m2+sip parcele 459m2!!! Ne ndertim, faze suvatimesh...
Tirane
Nr. Njesia - Zona me e afert?
6 Yzberisht | Misto Mame
Location Rruga + Nr.
Misto Mame, afer pasticeri Lika
Tipi
apartament
Siperfaqja m²
55 m²
Nr dhoma
1+1
Kati
Kati 4
Cmimi Euro
95000
Super Apartament 1+1 për SHITJE në Misto Mame, afër Pasticeri Lika -Apartamenti ndodhet në katin e 4 në një pallat të ri me ashensor Me sipërfaqe...
Tirane
Nr. Njesia - Zona me e afert?
6 Astir | Unaza e re | Teodor Keko
Tipi
apartament
Siperfaqja m²
181 m²
Nr dhoma
3+1
Kati
Kati 2
Cmimi Euro
207800
🌇Shitet Apartament 3+1 te Rezidenca Urban Gate ne Astir! ✨APARTAMENTI MUND TE NDAHET NE 2 APARTAMENTE 2+1 DHE 1+1✨ 📐Sipërfaqe totale: 181 m²...
Tirane
Nr. Njesia - Zona me e afert?
3 Xhamlliku | Oxhaku | Profarma
Cmimi Euro
130000
Shitet apartament 1+1 ne Xhamllik! 130,000€ Siperfaqe 50 m2. Kati 8 me ashensor. Prone teper e paster dhe e rregullt. Totalisht e investuar. Per...
Tirane
Location Rruga + Nr.
Shallvaret
Siperfaqja m²
66 m²
Cmimi Euro
133000
Shitet Apartament 1+1 – Shallvaret. 133.000Euro. Billion4383 Shitet Apartament 1+1 – Shallvaret Shitet apartament 1+1 në zonën e Shallvareve, një...
Tirane
Nr. Njesia - Zona me e afert?
9 Don Bosko | Jordan Misja | Bulevardi i Ri
Location Rruga + Nr.
Don bosko
Tipi
apartament
Siperfaqja m²
89 m²
Nr dhoma
2+1
Kati
Kati 2
Cmimi Euro
145000
Apartament i sapo listuar per shitje , i pozicionuar ne rrugen Foto Janku prane Hipotekes , Tirane. Informacion mbi apartamentin : •...
Back
Top