Tirane, jepet me qera ambjent biznesi Kati 0, 4.300 € (brryl)
- Tirane
- Tipi
- ambjent biznesi
- Kati
- Kati 0
- Cmimi Euro
- 4300 €
Jepet me qira Ambient Komercial prane Brrylit.
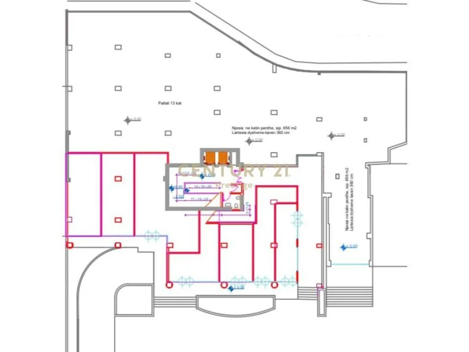
Ambienti ka nje siperfaqe totale prej 656 m2.
Ambienti disponon 4 tualete.
I vendosur ne katin 0 te nje pallati te ri te miradministruar.
Ambienti eshte i vendosur buze rruges kryesore nje mundesi fantastike investimi.
Cilesime te tjera:
-Totalisht i investuar
-Buze rruge
-Fasade Xhami
Ambienti i pershtatshem per t'u shfrytezuar si showroom, supermarket, qender kursesh, palester etj.
I vendosur ne nje prej zonave te cilat kane levizshmeri te larte, nje mundesi e persosur investimi.
Per me teper informacion dhe per nje vizite ne prone mund te kontaktoni!
Cel. : 0686040168
Ambienti ka nje siperfaqe totale prej 656 m2.
Ambienti disponon 4 tualete.
I vendosur ne katin 0 te nje pallati te ri te miradministruar.
Ambienti eshte i vendosur buze rruges kryesore nje mundesi fantastike investimi.
Cilesime te tjera:
-Totalisht i investuar
-Buze rruge
-Fasade Xhami
Ambienti i pershtatshem per t'u shfrytezuar si showroom, supermarket, qender kursesh, palester etj.
I vendosur ne nje prej zonave te cilat kane levizshmeri te larte, nje mundesi e persosur investimi.
Per me teper informacion dhe per nje vizite ne prone mund te kontaktoni!
Cel. : 0686040168
Location information