• Tirane, jepet me qera ambjent biznesi , , 195 m² 1,000 € (ali demi)

Tirane
Nr. Njesia - Zona me e afert?
1 Ali Demi | Tregu Elektrik
Tipi
ambjent biznesi
Siperfaqja m²
195 m²
Kati
Kati 0
Cmimi Euro
1000
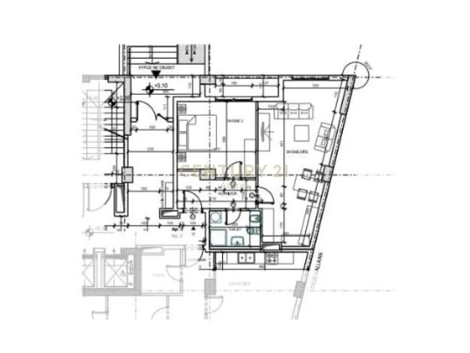
Jepet me qera ambient komercial, ne Ali Dem.
Ambienti ka planimetri te rregullt, i organizuar ne OPEN SPACE.
Ka siperfaqe totale 195 m2,
Siperfaqe neto; 165 m2.

Ndodhet ne katin 0.
Ndertim i vitit 2024.

Per me shume informacion apo nje vizite ne prone ju lutem kontaktoni !

Cel. : 0686040168
 


WhatsApp
Location information
address
1 Ali Demi | Tregu Elektrik, Tirane, Shqiperi
Back
Top